Запчасти Komatsu WA50-3 ЗАДН. РАМА ОСНОВНАЯ РАМА И ЕЕ ЧАСТИ

Схема запчастей Komatsu WA50-3 - ЗАДН. РАМА ОСНОВНАЯ РАМА И ЕЕ ЧАСТИ
1
1
2
3
4
5
6
6
7
8
FIT
1:1
100%

Артикул

Название

Примечание

Количество

1

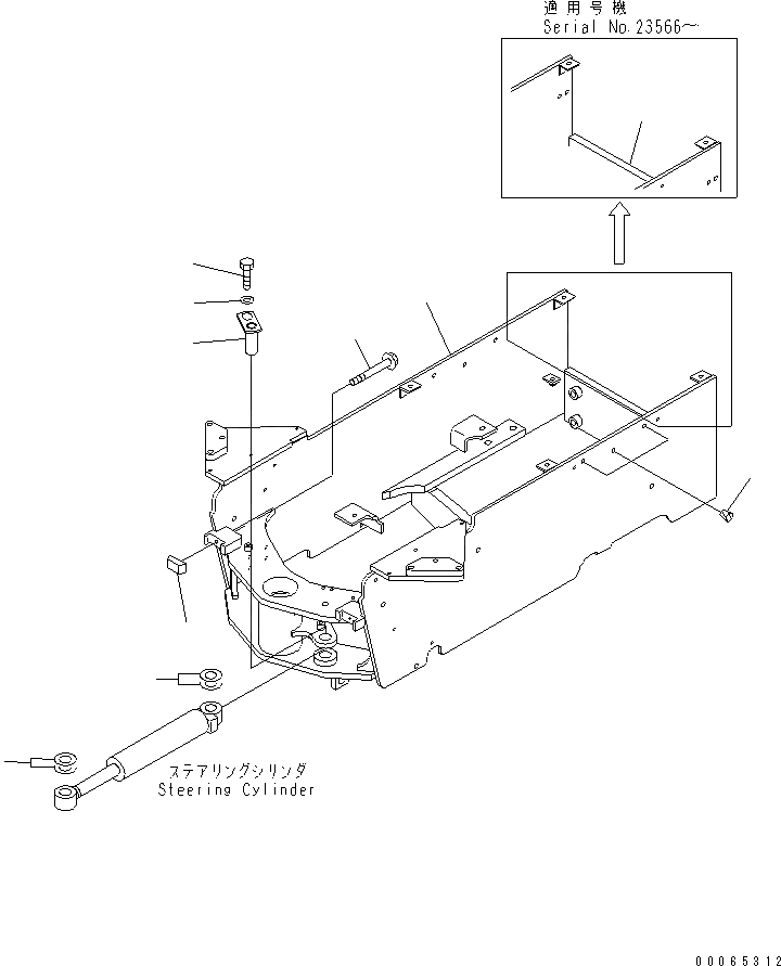
42A-46-22115

REAR FRAME

SN: 23566-UP

1шт.

1

42A-46-22114

FRAME

SN: 23543-23565

1шт.

1

42A-46-22113

FRAME

SN: 23001-23542

1шт.

2

07049-01418

PLUG

SN: 23001-UP

6шт.

3

363-46-32120

PIN

SN: 23001-UP

2шт.

4

01010-81220

BOLT

SN: 23001-UP

2шт.

5

175-54-34170

WASHER

SN: 23001-UP

2шт.

6

20S-70-81760

SPACER, 1.0MM

SN: 23001-UP

6шт.

6

363-46-32140

SHIM, 0.5MM

SN: 23001-UP

2шт.

7

361-46-22230

BUMPER

SN: 23001-UP

2шт.

8

01435-00870

BOLT

SN: 23001-UP

2шт.

Выбрано товаров: 11