Запчасти Komatsu WA500-3 ПОЛ (ПРАВ.КОНСОЛЬН. БЛОК)(№-) КАБИНА ОПЕРАТОРА И СИСТЕМА УПРАВЛЕНИЯ

Схема запчастей Komatsu WA500-3 - ПОЛ (ПРАВ.КОНСОЛЬН. БЛОК)(№-) КАБИНА ОПЕРАТОРА И СИСТЕМА УПРАВЛЕНИЯ
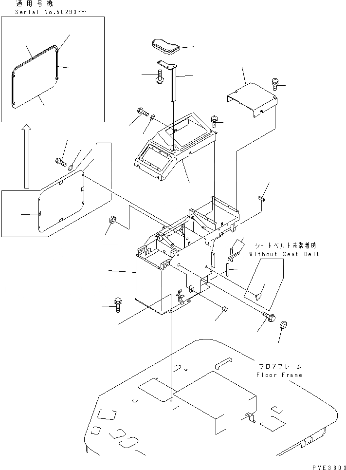
1
2
3
4
5
6
7
8
9
10
11
11
11A
11B
11C
12
13
14
15
15
16
17
18
19
20
21
22
FIT
1:1
100%

Артикул

Название

Примечание

Количество

1

421-54-22710

BOX,CONSOLE¤ R.H.

SN: 50001-52000

1шт.

2

421-54-22840

COVER,R.H.

SN: 50001-52000

1шт.

3

421-09-21410

SCREW

SN: 50001-@

5шт.

4

01220-70616

SCREW

SN: 50001-@

1шт.

5

01642-40608

WASHER

SN: 50001-@

1шт.

6

421-54-22850

COVER

SN: 50001-52000

1шт.

7

421-09-21410

SCREW

SN: 50001-52000

4шт.

8

363-54-32220

PLUG

SN: 50001-52000

1шт.

9

09415-01008

CAP

SN: 50001-52000

1шт.

10

01435-01220

BOLT

SN: 50001-@

4шт.

|11

425-V33-2171

PLATE ASS'Y

SN: 50293-52000

1шт.

11

421-54-22720

PLATE

SN: 50293-52000

1шт.

|11

421-54-22720

PLATE

SN: 50001-50292

1шт.

11A

425-V33-2150

SEAL

SN: 50293-52000

1шт.

11B

425-V33-2160

SEAL

SN: 50293-@

2шт.

11C

07005-01012

GASKET

SN: 50293-@

4шт.

12

421-09-21420

SHEET

SN: 50001-50292

4шт.

13

01220-70616

SCREW

SN: 50001-@

4шт.

14

01642-40608

WASHER

SN: 50001-@

4шт.

15

421-54-22520

FINISHER

SN: 50001-@

3шт.

16

421-54-22970

PROTECTOR

SN: 50001-@

1шт.

17

421-09-21450

PLUG

SN: 50001-@

1шт.

18

421-54-22870

PAD ASS'Y

SN: 50001-@

1шт.

19

421-54-22880

BRACKET

SN: 50001-52000

1шт.

20

01435-00616

BOLT

SN: 50001-@

2шт.

21

01435-01035

BOLT

SN: 50001-52000

1шт.

22

363-54-31450

CAP

SN: 50001-52000

1шт.

Выбрано товаров: 27