Запчасти Komatsu WA500-6 КАБИНА ROPS (ПОЛ Э/ПРОВОДКА)(№-) КАБИНА ОПЕРАТОРА И СИСТЕМА УПРАВЛЕНИЯ

Схема запчастей Komatsu WA500-6 - КАБИНА ROPS (ПОЛ Э/ПРОВОДКА)(№-) КАБИНА ОПЕРАТОРА И СИСТЕМА УПРАВЛЕНИЯ
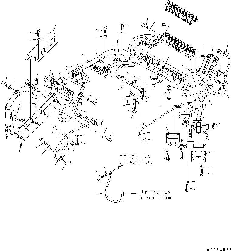
1
2
2
3
4
5
6
7
8
9
9
10
10
11
12
13
14
15
16
17
18
19
19
19
19
19
20
21
21
22
22
22
22
23
23
24
24
24
24
24
25
26
27
27
28
28
28
28
29
29
29
29
30
30
30
30
31
31
31
31
32
32
33
33
34
34
35
35
36
37
38
39
40
40
40
41
42
43
44
44
45
45
46
47
48
FIT
1:1
100%

Артикул

Название

Примечание

Количество

1

425-06-32522

WIRING HARNESS

SN: 55376-UP

1шт.

1

0

WIRING HARNESS

SN: 55237-55375

1шт.

1

425-06-32520

WIRING HARNESS

SN: 55202-55236

1шт.

1

418-06-35210

DIODE, 3A

SN: 55001-UP

2шт.

1

20Y-06-25250

DIODE, 1.5A

SN: 55376-UP

4шт.

1

20Y-06-25250

DIODE, 1.5A

SN: 55001-55375

2шт.

2

283-06-16110

BOX

SN: 55202-UP

2шт.

3

283-06-16160

TERMINAL

SN: 55202-UP

60шт.

4

08028-12045

CABLE

SN: 55001-UP

1шт.

5

01010-81020

BOLT

SN: 55001-UP

1шт.

6

01643-31032

WASHER

SN: 55001-UP

1шт.

7

425-06-32731

BRACKET

SN: 55001-UP

1шт.

8

425-06-32752

BRACKET

SN: 55001-UP

1шт.

9

01010-81016

BOLT

SN: 55001-UP

4шт.

10

01643-31032

WASHER

SN: 55001-UP

4шт.

11

425-06-32711

SHEET

SN: 55001-UP

1шт.

12

423-54-42960

PLATE

SN: 55001-UP

1шт.

13

01010-81030

BOLT

SN: 55001-UP

2шт.

14

01643-31032

WASHER

SN: 55001-UP

2шт.

15

425-06-32771

PLATE

SN: 55001-UP

16

01010-81020

BOLT

SN: 55001-UP

1шт.

17

01643-31032

WASHER

SN: 55001-UP

1шт.

18

08053-01510

CLIP

SN: 55001-UP

1шт.

19

04434-51010

CLIP

SN: 55001-UP

2шт.

20

04434-51410

CLIP

SN: 55001-UP

4шт.

21

04434-51710

CLIP

SN: 55001-UP

4шт.

22

04434-52711

CLIP

SN: 55001-UP

5шт.

23

04434-53211

CLIP

SN: 55001-UP

2шт.

24

04434-53411

CLIP

SN: 55001-UP

10шт.

25

23S-62-25850

CLIP

SN: 55001-UP

3шт.

26

08038-00519

CAP

SN: 55001-UP

4шт.

27

01023-10412

SCREW

SN: 55001-UP

8шт.

28

01010-81016

BOLT

SN: 55001-UP

13шт.

29

01643-31032

WASHER

SN: 55001-UP

13шт.

30

01010-81020

BOLT

SN: 55001-UP

7шт.

31

01643-31032

WASHER

SN: 55001-UP

7шт.

32

01010-81025

BOLT

SN: 55001-UP

2шт.

33

01643-31032

WASHER

SN: 55001-UP

2шт.

34

01010-81030

BOLT

SN: 55001-UP

10шт.

35

01643-31032

WASHER

SN: 55001-UP

10шт.

36

01010-81055

BOLT

SN: 55001-UP

3шт.

37

01643-31032

WASHER

SN: 55001-UP

3шт.

38

01010-81060

BOLT

SN: 55001-UP

1шт.

39

01643-31032

WASHER

SN: 55001-UP

1шт.

40

424-54-14380

COLLAR

SN: 55001-UP

12шт.

41

22D-62-12440

SPACER

SN: 55001-UP

1шт.

42

08034-40521

BAND

SN: 55001-UP

2шт.

43

09415-03614

CAP

SN: 55001-UP

1шт.

44

07095-20523

CUSHION

SN: 55001-UP

2шт.

45

04434-51910

CLIP

SN: 55001-UP

3шт.

46

04434-52210

CLIP

SN: 55001-UP

1шт.

47

22D-62-18450

SPACER

SN: 55001-UP

1шт.

48

08193-20010

CLIP

SN: 55001-UP

1шт.

Выбрано товаров: 53