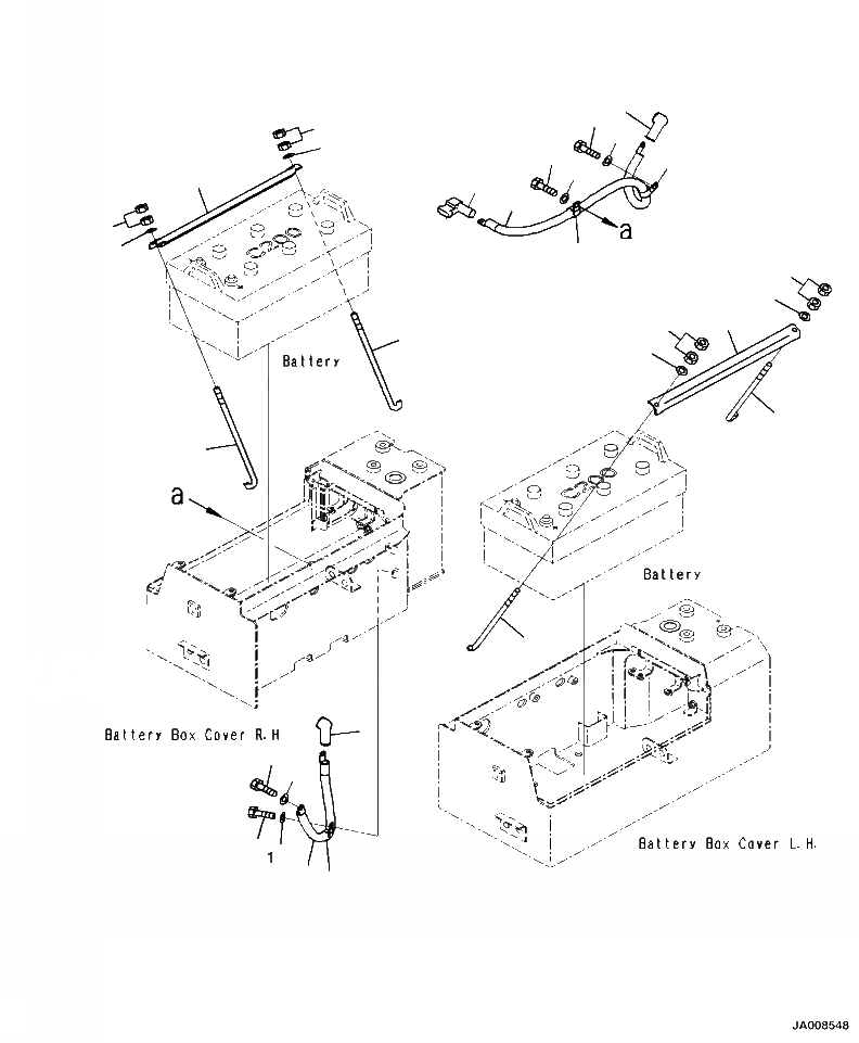
Запчасти Komatsu WA500-7 E-A КОРПУС АККУМУЛЯТОРА КАБЕЛЬ ЭЛЕКТРИКА

Схема запчастей Komatsu WA500-7 - E-A КОРПУС АККУМУЛЯТОРА КАБЕЛЬ ЭЛЕКТРИКА
1
3
4
2
3
4
13
5
8
12
11
9
10
7
8
3
4
1
3
4
2
8
6
2
11
11
12
7
2
2
FIT
1:1
100%

Артикул

Название

Примечание

Количество

1

425-06-44340

HOLDER

2шт.

2

113-06-31120

BOLT

4шт.

3

01580-11008

NUT

8шт.

4

01643-31032

WASHER

4шт.

5

425-06-44380

CABLE

1шт.

6

425-06-44370

CABLE

1шт.

7

08038-00035

CAP, TERMINAL

2шт.

8

04434-52310

CLIP

3шт.

9

01010-81020

BOLT

1шт.

10

01643-31032

WASHER

1шт.

11

01010-81016

BOLT

3шт.

12

01643-31032

WASHER

3шт.

13

14X-06-12260

COVER

1шт.

Выбрано товаров: 13