Запчасти Komatsu WA500-7 K-A КАБИНА ROPS РАДИО МОНТАЖНЫЙ КАРКАСS OPERATORXD S ОБСТАНОВКА И СИСТЕМА УПРАВЛЕНИЯ

Схема запчастей Komatsu WA500-7 - K-A КАБИНА ROPS РАДИО МОНТАЖНЫЙ КАРКАСS OPERATORXD S ОБСТАНОВКА И СИСТЕМА УПРАВЛЕНИЯ
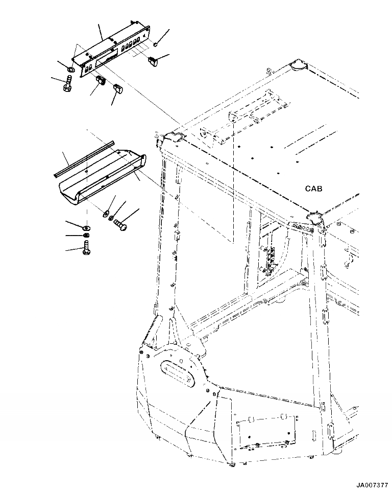
1
2
3
3
10
11
9
12
8
7
6
7
8
5
4
FIT
1:1
100%

Артикул

Название

Примечание

Количество

1

423-06-45440

SWITCH, REAR DEFROSTER ON/OFF

1шт.

2

09415-00506

CAP

1шт.

3

20Y-06-42190

COVER

6шт.

4

418-925-3450

COVER

1шт.

5

01225-70620

SCREW, PHILIPS HEAD

6шт.

6

01225-70625

SCREW, PHILIPS HEAD

2шт.

7

418-926-3490

WASHER

8шт.

8

423-925-4620

WASHER

8шт.

9

423-926-5820

BRACKET

1шт.

10

01010-80616

BOLT

6шт.

11

01643-30623

WASHER

6шт.

12

425-925-3580

SEAL

1шт.

Выбрано товаров: 12