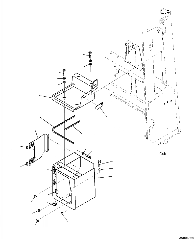
Запчасти Komatsu WA500-7 K-A ЗАДН. ЛЕВ. КОНСОЛЬН. БЛОК COVER OPERATORXD S ОБСТАНОВКА И СИСТЕМА УПРАВЛЕНИЯ

Схема запчастей Komatsu WA500-7 - K-A ЗАДН. ЛЕВ. КОНСОЛЬН. БЛОК COVER OPERATORXD S ОБСТАНОВКА И СИСТЕМА УПРАВЛЕНИЯ
5
4
4
4
2
3
1
7
6
16
17
19
9
2
18
18
15
20
8
14
12
11
13
12
10
FIT
1:1
100%

Артикул

Название

Примечание

Количество

1

423-54-52831

CASE

1шт.

2

421-09-21360

HINGE, WELDED

4шт.

3

23A-952-1630

LOCK

1шт.

4

423-54-52191

SHEET

3шт.

5

421-54-22560

PLUG

1шт.

6

01010-81050

BOLT

3шт.

7

01643-31032

WASHER

3шт.

8

423-54-52971

COVER

1шт.

9

421-926-5950

FASTENER

1шт.

10

01240-00616

SCREW

2шт.

11

01240-00620

SCREW

2шт.

12

23S-55-51970

WASHER

4шт.

13

20Y-43-41290

COLLAR

2шт.

14

20Y-53-12310

COLLAR

2шт.

15

423-54-52210

BRACKET

1шт.

16

01240-00616

SCREW

4шт.

17

23S-55-51970

WASHER

4шт.

18

423-54-52020

MAGNET

2шт.

19

425-54-33520

FINISHER

1шт.

20

23B-952-7640

FINISHER

1шт.

Выбрано товаров: 20