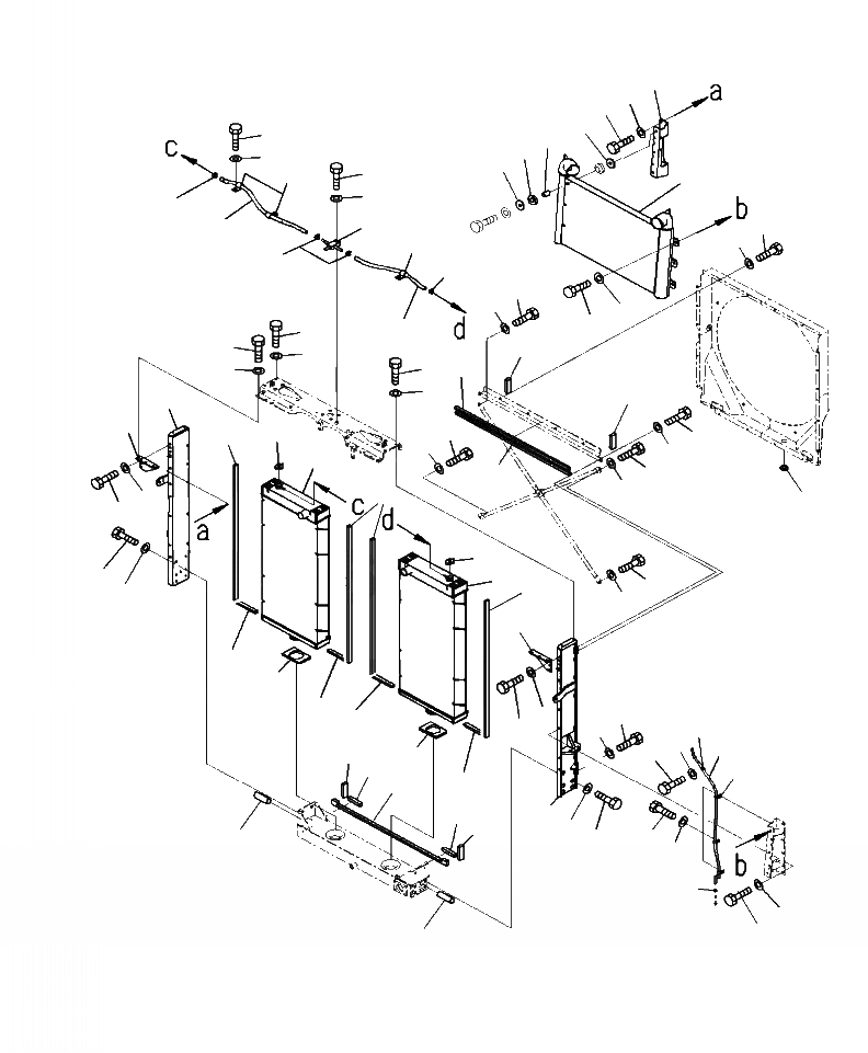
Запчасти Komatsu WA500-7 C-A РАДИАТОР COMPLETE ASSEMBLY СИСТЕМА ОХЛАЖДЕНИЯ

Схема запчастей Komatsu WA500-7 - C-A РАДИАТОР COMPLETE ASSEMBLY СИСТЕМА ОХЛАЖДЕНИЯ
24
8
7
20
22
3
21
20
4
14
5
26
6
18
25
3
36
4
14
18
18
9
10
8
7
9
35
31
7
10
32
9
8
31
10
39
27
11
23
41
12
9
10
38
32
11
12
42
8
16
7
23
7
37
41
9
8
10
28
29
30
29
9
8
29
15
10
7
2
17
31
1
30
33
15
34
29
33
40
31
8
1
7
13
2
19
8
7
13
FIT
1:1
100%

Артикул

Название

Примечание

Количество

|$0

425-03-41200

RADIATOR ASSEMBLY

1шт.

1

01010-81020

BOLT

4шт.

2

01643-31032

WASHER

4шт.

3

01010-81025

BOLT

21шт.

4

01643-31032

WASHER

21шт.

5

01010-81030

BOLT

1шт.

6

01643-31032

WASHER

1шт.

7

01010-81230

BOLT

37шт.

8

01643-31232

WASHER

37шт.

9

01010-81235

BOLT

10шт.

10

01643-31232

WASHER

10шт.

11

01010-81240

BOLT

2шт.

12

01643-31232

WASHER

2шт.

13

04020-01024

PIN, DOWEL

2шт.

14

04434-51310

CLIP

3шт.

15

04434-51610

CLIP

4шт.

16

09415-03614

CAP

1шт.

17

09483-10315

HOSE

1шт.

18

11Y-09-11120

CLIP

4шт.

19

11Y-09-11140

CLIP

1шт.

20

419-43-17920

WASHER

6шт.

21

415-64-13130

CUSHION

3шт.

22

417-54-12260

SPACER

3шт.

23

23B-03-31170

CAP

2шт.

24

425-03-41160

BRACKET

1шт.

25

423-03-51351

JOINT

1шт.

26

425-03-44510

AFTERCOOLER

1шт.

27

425-03-31570

PLATE

1шт.

28

425-03-31580

PLATE

1шт.

29

425-03-42620

PACKING

4шт.

30

425-03-41720

PACKING

2шт.

31

425-03-41730

PACKING

4шт.

32

425-03-41740

PACKING

2шт.

33

425-03-41760

PACKING

2шт.

34

425-03-41790

PACKING

1шт.

35

425-03-41920

HOSE

1шт.

36

425-03-41930

HOSE

1шт.

37

425-03-42210

CORE

1шт.

38

425-03-42220

CORE

1шт.

39

425-03-42230

SUPPORT

1шт.

40

425-03-42240

SUPPORT

1шт.

41

425-03-42630

PACKING

2шт.

42

425-03-42610

PACKING

2шт.

Выбрано товаров: 43