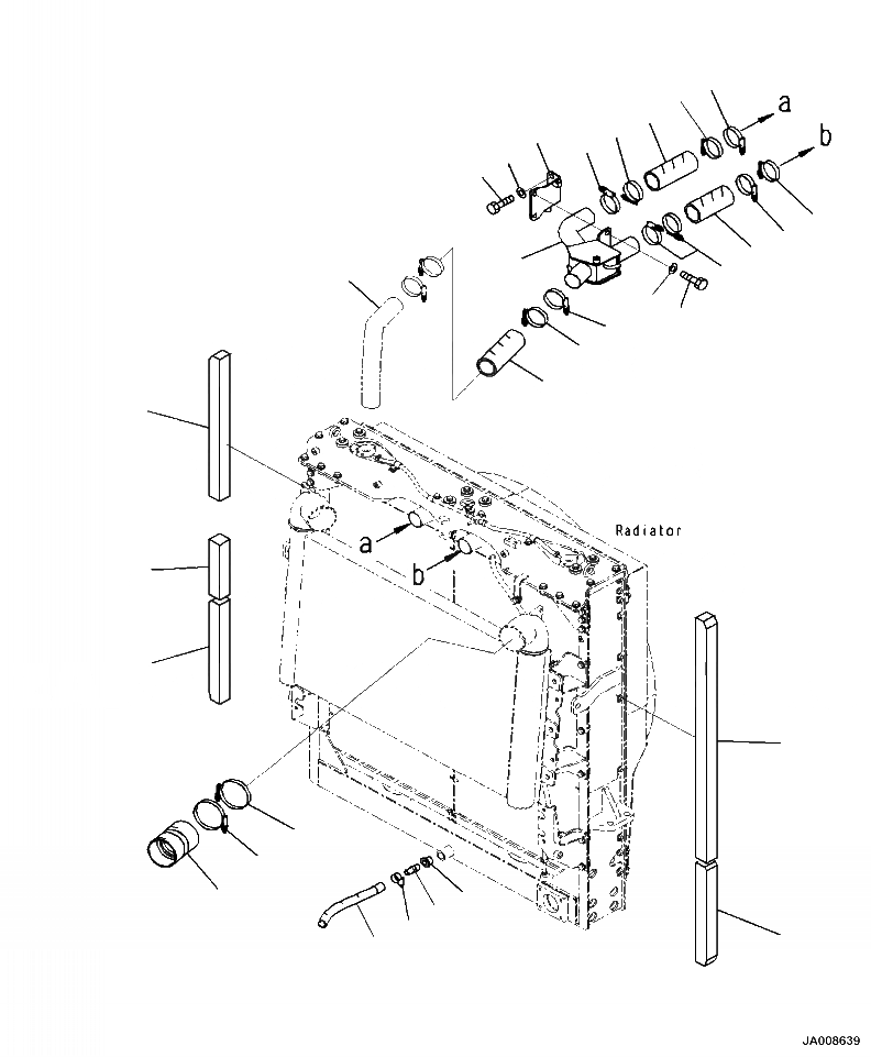
Запчасти Komatsu WA500-7 C-A СИСТЕМА ТРУБ РАДИАТОРА (/) СИСТЕМА ОХЛАЖДЕНИЯ

Схема запчастей Komatsu WA500-7 - C-A СИСТЕМА ТРУБ РАДИАТОРА (/) СИСТЕМА ОХЛАЖДЕНИЯ
9
9
8
9
9
1
6
5
2
10
11
11
4
3
9
7
9
9
22
14
15
12
20
21
21
16
17
19
18
12
13
FIT
1:1
100%

Артикул

Название

Примечание

Количество

1

425-03-41450

BRACKET

1шт.

2

425-03-31432

TUBE

1шт.

3

01010-81230

BOLT

2шт.

4

01643-31232

WASHER

2шт.

5

01010-81225

BOLT

2шт.

6

01643-31232

WASHER

2шт.

7

07260-25818

HOSE

1шт.

8

07260-25816

HOSE

1шт.

9

07299-00080

CLAMP

8шт.

10

07260-25820

HOSE

1шт.

11

07299-00080

CLAMP

2шт.

12

425-54-46120

SHEET

2шт.

13

425-54-46190

SHEET, LEFT

1шт.

14

425-54-46180

SHEET, RIGHT

1шт.

15

425-54-46170

SHEET

1шт.

16

07326-10604

ADAPTER

1шт.

17

425-03-31940

NIPPLE

1шт.

18

425-03-41370

HOSE

1шт.

19

07289-00035

CLAMP

1шт.

20

6212-11-4410

HOSE

1шт.

21

07299-00105

CLAMP, HOSE

2шт.

22

TUBE (SEE FIG. C0110-14A0 )

-1шт.

Выбрано товаров: 22