Запчасти Komatsu WA600-3 ПОЛ (ПРАВ. КОНСОЛЬН. БЛОК)(№-8) КАБИНА ОПЕРАТОРА И СИСТЕМА УПРАВЛЕНИЯ

Схема запчастей Komatsu WA600-3 - ПОЛ (ПРАВ. КОНСОЛЬН. БЛОК)(№-8) КАБИНА ОПЕРАТОРА И СИСТЕМА УПРАВЛЕНИЯ
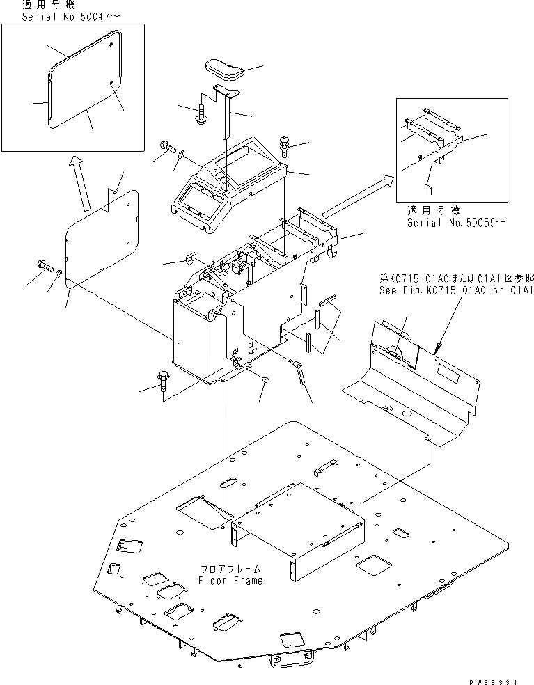
1
1
2
3
4
5
6
7
7
7A
7B
7C
8
9
10
11
12
13
14
15
16
17
18
FIT
1:1
100%

Артикул

Название

Примечание

Количество

1

426-54-22713

BOX,CONSOLE¤ R.H.

SN: 50069-52018

1шт.

|1

0

BOX,CONSOLE¤ R.H.

SN: 50001-50068

1шт.

2

426-54-22841

COVER,R.H.

SN: 50001-52018

1шт.

3

421-09-21410

SCREW

SN: 50001-52018

5шт.

4

01220-70616

SCREW

SN: 50001-52018

1шт.

5

01642-40608

WASHER

SN: 50001-52018

1шт.

6

01435-01220

BOLT

SN: 50001-52018

4шт.

|7

426-54-22810

PLATE ASS'Y

SN: 50047-52018

1шт.

|7

0

PLATE

SN: 50001-50046

1шт.

7

426-54-22720

PLATE

SN: 50047-52018

1шт.

7A

426-54-22820

SEAL

SN: 50047-52018

1шт.

7B

425-V33-2160

SEAL

SN: 50047-52018

1шт.

7C

07005-01012

GASKET

SN: 50047-52018

4шт.

8

421-09-21420

SHEET

SN: 50001-52018

4шт.

9

01220-70616

SCREW

SN: 50001-52018

4шт.

10

01642-40608

WASHER

SN: 50001-52018

4шт.

11

421-54-22520

FINISHER

SN: 50001-52018

3шт.

12

421-54-22970

PROTECTOR

SN: 50001-52018

1шт.

13

421-09-21450

PLUG

SN: 50001-52018

1шт.

14

421-54-22870

PAD ASS'Y

SN: 50001-52018

1шт.

15

426-54-22171

BRACKET

SN: 50301-52018

1шт.

|15

426-54-22170

BRACKET

SN: 50001-50300

1шт.

16

01435-00616

BOLT

SN: 50001-52018

2шт.

17

426-54-22180

LEVER

SN: 50001-52018

1шт.

18

426-54-22190

PLATE

SN: 50001-52018

1шт.

Выбрано товаров: 25