Запчасти Komatsu WA600-3 КАПОТ (СУППОРТ)(№-) ЧАСТИ КОРПУСА

Схема запчастей Komatsu WA600-3 - КАПОТ (СУППОРТ)(№-) ЧАСТИ КОРПУСА
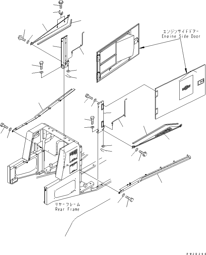
1
2
3
3
4
4
5
6
7
8
8
9
9
9
10
11
12
13
14
14
15
15
16
16
17
18
19
19
20
20
FIT
1:1
100%

Артикул

Название

Примечание

Количество

1

426-54-21282

BRACKET,L.H.

SN: 52001-@

1шт.

2

426-54-21292

BRACKET,R.H.

SN: 52001-@

1шт.

3

01010-81635

BOLT

SN: 50001-@

4шт.

4

01643-31645

WASHER

SN: 50001-@

4шт.

5

426-54-31211

BRACKET,L.H.

SN: 52001-52015

1шт.

6

426-Z84-5390

BRACKET,R.H.

SN: 52001-52015

1шт.

7

01010-81225

BOLT

SN: 52001-@

6шт.

8

01010-81235

BOLT

SN: 52001-@

2шт.

9

01643-31232

WASHER

SN: 50001-@

8шт.

10

426-54-21311

SUPPORT,L.H.

SN: 52001-52015

1шт.

11

426-54-21321

SUPPORT,R.H.

SN: 50001-@

1шт.

12

417-54-21460

SPRING

SN: 50001-@

2шт.

13

01435-00812

BOLT

SN: 50001-@

2шт.

14

426-54-11531

SEAL

SN: 50001-@

2шт.

15

01435-01230

BOLT

SN: 50001-@

4шт.

16

01643-31232

WASHER

SN: 50001-@

4шт.

17

426-54-21480

BAR,L.H.

SN: 52001-@

1шт.

18

426-54-21490

BAR,R.H.

SN: 52001-@

1шт.

19

01643-31445

WASHER

SN: 50001-@

2шт.

20

04052-11453

PIN,SNAP

SN: 50001-@

2шт.

Выбрано товаров: 20