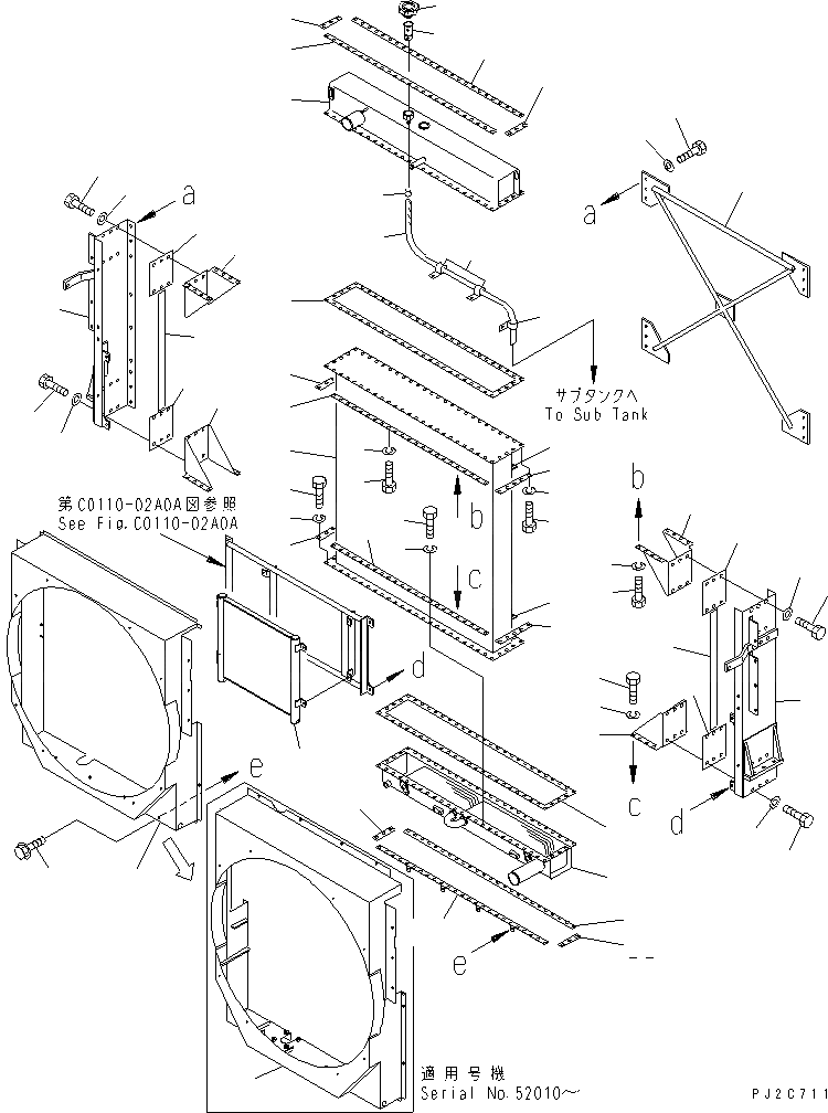
Запчасти Komatsu WA600-3 РАДИАТОР (ВНУТР. ЧАСТИ¤ /)(№-) СИСТЕМА ОХЛАЖДЕНИЯ

Схема запчастей Komatsu WA600-3 - РАДИАТОР (ВНУТР. ЧАСТИ¤ /)(№-) СИСТЕМА ОХЛАЖДЕНИЯ
1
2
3
4
4
5
5
5
5
6
6
6
6
7
7
7
7
8
8
8
8
9
9
9
9
10
10
11
11
12
13
13
14
15
16
16
17
17
18
18
19
19
20
20
20
20
21
21
22
22
22
22
23
24
24
25
26
26
27
28
29
30
31
32
33
34
FIT
1:1
100%

Артикул

Название

Примечание

Количество

|$5

426-03-21712

RADIATOR ASS'Y

SN: 52010-UP

1шт.

|$6

426-03-21711

RADIATOR ASS'Y

SN: 52001-52009

1шт.

|$$3

THESE ASSEMBLIES CONSIST OF ALL PARTS SHOWN IN FIGS.C0110 -01A0A AND FIGS. C0110-02A0A.

-1шт.

|$8

426-03-21510

CORE ASS'Y

SN: 52001-UP

1шт.

1

426-03-21520

CORE

SN: 52001-UP

1шт.

2

426-02-21531

TANK,UPPER

SN: 52001-UP

1шт.

3

426-03-21541

TANK,LOWER

SN: 52001-UP

1шт.

4

426-03-11221

PLATE

SN: 52001-UP

2шт.

5

426-03-11182

PLATE

SN: 50001-UP

4шт.

6

426-03-11192

PLATE

SN: 50001-UP

4шт.

7

426-03-21550

RIB

SN: 52001-UP

4шт.

8

01010-81030

BOLT

SN: 50001-UP

80шт.

9

01602-21030

WASHER,SPRING

SN: 50001-UP

80шт.

10

01010-81040

BOLT

SN: 50001-UP

32шт.

11

01602-21030

WASHER,SPRING

SN: 50001-UP

32шт.

12

426-03-21560

PLATE

SN: 52001-UP

1шт.

13

426-03-11212

GASKET

SN: 50001-UP

2шт.

14

426-03-21571

SUPPORT,R.H.

SN: 52001-UP

1шт.

15

426-03-21581

SUPPORT,L.H.

SN: 52001-UP

1шт.

16

01010-81230

BOLT

SN: 52001-UP

6шт.

17

01643-31232

WASHER

SN: 52001-UP

6шт.

18

01010-81240

BOLT

SN: 52001-UP

18шт.

19

01643-31232

WASHER

SN: 52001-UP

18шт.

20

426-03-21270

PACKING

SN: 50001-UP

4шт.

21

426-03-21280

PACKING

SN: 50001-UP

2шт.

22

426-03-11260

PLATE

SN: 50001-UP

4шт.

23

426-03-21590

PLATE

SN: 52001-UP

1шт.

24

426-03-21612

SHROUD

SN: 52010-UP

1шт.

24

426-03-21611

SHROUD

SN: 52001-52009

1шт.

25

01435-01030

BOLT

SN: 52001-UP

14шт.

26

08036-41210

CLIP

SN: 52001-UP

3шт.

27

426-03-21370

COOLER,FUEL

SN: 52001-UP

1шт.

28

426-03-21620

CAP,PRESSURE

SN: 52001-UP

1шт.

29

101-03-13160

STRAINER

SN: 50001-UP

1шт.

30

426-03-21630

HOSE

SN: 52001-UP

1шт.

31

206-03-43340

CLIP

SN: 52001-UP

1шт.

32

426-03-21640

STAY

SN: 52001-UP

1шт.

33

01010-81235

BOLT

SN: 52001-UP

12шт.

34

01643-31232

WASHER

SN: 50001-UP

12шт.

Выбрано товаров: 39