Запчасти Komatsu WA600-3D РАДИАТОР (ДРЕНАЖН. И ДВИГАТЕЛЬ ТРУБЫ) (С КОНДИЦИОНЕРОМ ИЛИ ОБОГРЕВАТЕЛЬ.)(№-) СИСТЕМА ОХЛАЖДЕНИЯ

Схема запчастей Komatsu WA600-3D - РАДИАТОР (ДРЕНАЖН. И ДВИГАТЕЛЬ ТРУБЫ) (С КОНДИЦИОНЕРОМ ИЛИ ОБОГРЕВАТЕЛЬ.)(№-) СИСТЕМА ОХЛАЖДЕНИЯ
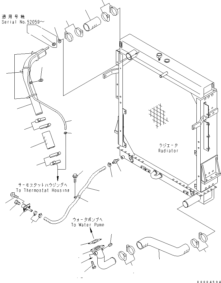
1
2
2
3
4
5
6
6
7
8
8
9
10
11
12
13
14
15A
15
15
16
17
18
19
19
20
21
22
23
24
FIT
1:1
100%

Артикул

Название

Примечание

Количество

1

07260-27418

HOSE

SN: 52001-@

1шт.

2

07281-01029

CLAMP

SN: 50115-53000

4шт.

3

426-03-22150

TUBE

SN: 52001-53000

1шт.

4

07042-20108

PLUG

SN: 52001-@

1шт.

5

07260-27418

HOSE

SN: 52001-@

1шт.

6

07281-01029

CLAMP

SN: 52001-53000

4шт.

7

426-03-22141

HOSE

SN: 52001-@

1шт.

8

07281-01029

CLAMP

SN: 50115-53000

4шт.

9

426-03-22521

TUBE

SN: 52001-@

1шт.

10

07042-20108

PLUG

SN: 52001-@

1шт.

11

6693-62-9242

GASKET

SN: 50115-@

1шт.

12

01010-81030

BOLT

SN: 50115-@

4шт.

13

01643-51032

WASHER

SN: 50115-@

4шт.

14

09483-40311

HOSE

SN: 52001-53000

1шт.

15

07281-00197

CLAMP

SN: 50115-@

2шт.

15A

426-03-21470

TUBE

SN: 52059-@

1шт.

16

08034-20536

BAND

SN: 50115-53000

3шт.

17

6137-81-3231

NIPPLE

SN: 50115-@

1шт.

18

427-03-11510

HOSE

SN: 52001-53000

1шт.

19

07281-00359

CLAMP,HOSE

SN: 50115-@

3шт.

20

04434-52712

CLIP

SN: 50115-@

1шт.

21

01435-01016

BOLT

SN: 50115-@

1шт.

22

426-01-11231

TUBE

SN: 50115-@

1шт.

23

01435-01025

BOLT

SN: 50115-@

2шт.

24

424-01-11110

PLUG

SN: 50115-@

1шт.

Выбрано товаров: 25