Запчасти Komatsu WA600-3D ОТСЕК ДВИГАТЕЛЯ(С ОБОГРЕВ-ЛЕМ)(№-) ЧАСТИ КОРПУСА

Схема запчастей Komatsu WA600-3D - ОТСЕК ДВИГАТЕЛЯ(С ОБОГРЕВ-ЛЕМ)(№-) ЧАСТИ КОРПУСА
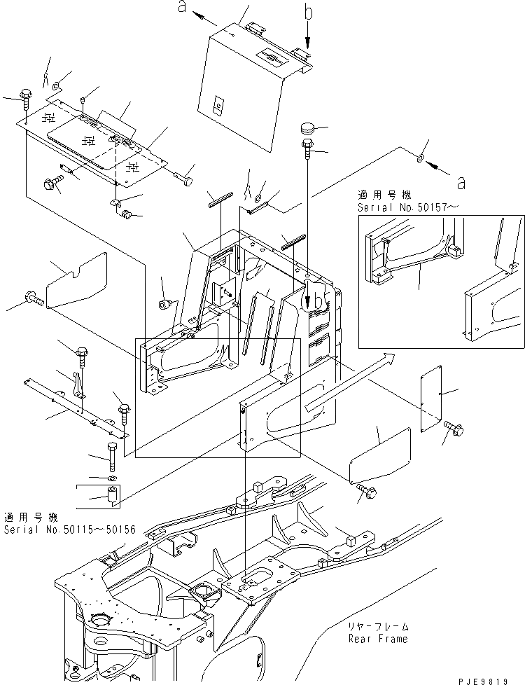
1
1
2
3
4
5
6
6
7
8
9
10
11
12
13
14
15
16
17
18
19
19
20
21
21
22
23
24
25
26
27
28
29
30
31
32
33
FIT
1:1
100%

Артикул

Название

Примечание

Количество

1

426-Z84-3173

BULKHEAD

SN: 50327-52000

1шт.

1

0

BULKHEAD

SN: (50157-50326)

1шт.

1

426-Z84-3171

BULKHEAD

SN: 50115-50156

1шт.

2

01010-82095

BOLT

SN: 50001-52000

6шт.

3

01643-32060

WASHER

SN: 50001-52000

6шт.

4

176-70-43220

COLLAR

SN: 50001-50156

6шт.

5

427-54-11640

SEAL,DOOR

SN: 50001-52000

2шт.

6

417-54-13361

SEAL

SN: 50115-52000

2шт.

7

421-09-21420

SHEET

SN: 50001-@

2шт.

8

415-54-11980

CUSHION

SN: 50001-@

2шт.

|$15

426-54-21754

COVER

SN: 50327-52000

1шт.

9

0

COVER

SN: 50128-50326

1шт.

9

0

COVER

SN: 50001-50127

1шт.

9

426-54-11961

LOCK (WELDED)

SN: 50001-@

1шт.

9

416-09-12310

HINGE (WELDED)

SN: 50001-@

2шт.

10

426-54-21531

PLATE,L.H.

SN: 50001-@

1шт.

11

426-54-21570

PLATE,R.H.

SN: 50001-@

1шт.

12

426-54-21541

PLATE

SN: 50001-52000

1шт.

13

426-54-21761

SUPPORT

SN: 50001-52000

1шт.

14

426-54-24184

COVER

SN: 50327-@

1шт.

14

426-54-24183

COVER

SN: 50001-50326

1шт.

14

423-06-11560

HINGE (WELDED)

SN: 50001-@

1шт.

15

426-Z84-3922

PLATE

SN: 50327-52000

1шт.

15

426-Z84-3921

PLATE

SN: 50115-50326

1шт.

16

01435-01016

BOLT

SN: 50115-52000

6шт.

17

01435-01235

BOLT

SN: 50001-@

4шт.

18

426-Z84-3181

BAR

SN: 50115-52000

1шт.

19

01641-20812

WASHER

SN: 50001-@

2шт.

20

04052-10833

PIN,SNAP

SN: 50001-@

1шт.

21

01435-01220

BOLT

SN: 50001-@

8шт.

22

01435-01220

BOLT

SN: 50001-52000

6шт.

23

01435-01225

BOLT

SN: 50001-52000

2шт.

24

01435-01220

BOLT

SN: 50001-52000

4шт.

25

09415-02512

CAP

SN: 50001-@

4шт.

26

415-54-11640

PLATE

SN: 50001-@

1шт.

27

01435-01220

BOLT

SN: 50001-@

2шт.

28

415-54-11610

LATCH

SN: 50001-@

1шт.

29

415-54-11620

SPRING

SN: 50001-@

1шт.

30

415-54-11630

PIN

SN: 50001-@

1шт.

31

01643-30623

WASHER

SN: 50001-@

1шт.

32

04050-12015

PIN,COTTER

SN: 50001-@

1шт.

33

415-54-11980

CUSHION

SN: 50001-@

2шт.

Выбрано товаров: 42