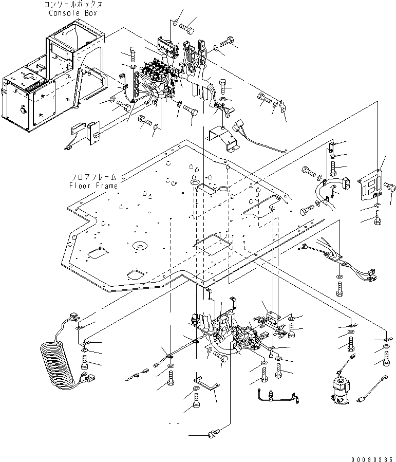
Запчасти Komatsu WA600-6 ПОЛ SUB (ОСНОВН. КОНСТРУКЦИЯ Э/ПРОВОДКА) (РУЛЕВОЕ КОЛЕСО)(№7-) КАБИНА ОПЕРАТОРА И СИСТЕМА УПРАВЛЕНИЯ

Схема запчастей Komatsu WA600-6 - ПОЛ SUB (ОСНОВН. КОНСТРУКЦИЯ Э/ПРОВОДКА) (РУЛЕВОЕ КОЛЕСО)(№7-) КАБИНА ОПЕРАТОРА И СИСТЕМА УПРАВЛЕНИЯ
1
2
3
4
4
5
6
6
6
6
7
8
9
10
10
11
12
14
15
16
16
16
16
16
16
17
17
17
17
17
17
18
18
18
19
19
19
20
21
22
22
22
22
23
23
23
24
24
24
25
26
27
28
29
30
31
31
32
33
34
35
36
37
38
38
39
40
41
FIT
1:1
100%

Артикул

Название

Примечание

Количество

1

426-06-32715

WIRE HARNESS

SN: 60217-UP

1шт.

1

426-06-31550

CONNECTOR

SN: 60217-UP

1шт.

1

426-06-31570

CONNECTOR

SN: 60217-UP

1шт.

1

426-06-31610

CONNECTOR

SN: 60217-UP

1шт.

1

426-06-31630

CONNECTOR

SN: 60217-UP

1шт.

1

426-06-31650

CONNECTOR

SN: 60217-UP

1шт.

2

14X-911-4551

CLIP

SN: 60217-UP

2шт.

3

04434-50610

CLIP

SN: 60217-UP

2шт.

4

04434-50810

CLIP

SN: 60217-UP

2шт.

5

04434-51008

CLIP

SN: 60217-UP

1шт.

6

04434-51010

CLIP

SN: 60217-UP

2шт.

7

04434-52110

CLIP

SN: 60217-UP

1шт.

8

04434-52210

CLIP

SN: 60217-UP

1шт.

9

04434-52511

CLIP

SN: 60217-UP

2шт.

10

04434-53211

CLIP

SN: 60217-UP

2шт.

11

04434-53411

CLIP

SN: 60217-UP

1шт.

12

281-01-13180

CLIP

SN: 60217-UP

1шт.

14

01010-80812

BOLT

SN: 60217-UP

1шт.

15

01643-30823

WASHER

SN: 60217-UP

1шт.

16

01010-81016

BOLT

SN: 60217-UP

8шт.

17

01643-31032

WASHER

SN: 60217-UP

8шт.

18

01010-81020

BOLT

SN: 60217-UP

3шт.

19

01643-31032

WASHER

SN: 60217-UP

3шт.

20

01010-81025

BOLT

SN: 60217-UP

2шт.

21

01643-31032

WASHER

SN: 60217-UP

2шт.

22

08193-21012

CLIP

SN: 60217-UP

5шт.

23

01010-81016

BOLT

SN: 60217-UP

5шт.

24

01643-31032

WASHER

SN: 60217-UP

5шт.

25

426-06-32672

BRACKET

SN: 60217-UP

1шт.

26

01010-81020

BOLT

SN: 60217-UP

2шт.

27

01643-31032

WASHER

SN: 60217-UP

2шт.

28

426-06-32660

BRACKET

SN: 60217-UP

1шт.

29

01010-81020

BOLT

SN: 60217-UP

2шт.

30

01643-31032

WASHER

SN: 60217-UP

2шт.

31

425-03-11420

PLATE

SN: 60217-UP

2шт.

32

01010-81020

BOLT

SN: 60217-UP

2шт.

33

01643-31032

WASHER

SN: 60217-UP

2шт.

34

426-06-32871

PLATE

SN: 60217-UP

1шт.

35

01010-80612

BOLT

SN: 60217-UP

2шт.

36

01643-30623

WASHER

SN: 60217-UP

2шт.

37

426-06-32862

SHEET

SN: 60217-UP

1шт.

38

01023-20412

SCREW

SN: 60217-UP

20шт.

39

08193-21012

CLIP

SN: 60217-UP

1шт.

40

01010-81016

BOLT

SN: 60217-UP

1шт.

41

01643-31032

WASHER

SN: 60217-UP

1шт.

Выбрано товаров: 45