Запчасти Komatsu WA600-6R BULKHEAD ЧАСТИ КОРПУСА

Схема запчастей Komatsu WA600-6R - BULKHEAD ЧАСТИ КОРПУСА
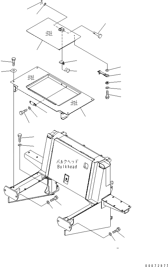
1
1
2
2
3
4
5
5
6
7
8
9
10
11
12
13
14
15
16
17
18
19
20
FIT
1:1
100%

Артикул

Название

Примечание

Количество

1

01010-82050

BOLT

SN: 65001-UP

4шт.

2

01643-32060

WASHER

SN: 65001-UP

4шт.

3

01010-82050

BOLT

SN: 65001-UP

4шт.

4

01643-32060

WASHER

SN: 65001-UP

4шт.

5

426-54-42171

COVER

SN: 65001-UP

1шт.

6

415-54-11610

LATCH

SN: 65001-UP

1шт.

7

415-54-11620

SPRING

SN: 65001-UP

1шт.

8

415-54-11630

PIN

SN: 65001-UP

1шт.

9

415-54-11640

PLATE

SN: 65001-UP

1шт.

10

01010-D1225

BOLT

SN: 65001-UP

2шт.

11

01643-71232

WASHER

SN: 65001-UP

2шт.

12

04050-12015

PIN

SN: 65001-UP

1шт.

13

01643-30623

WASHER

SN: 65001-UP

3шт.

14

426-54-42271

BAND

SN: 65001-UP

1шт.

15

01010-81020

BOLT

SN: 65001-UP

1шт.

16

01643-31032

WASHER

SN: 65001-UP

1шт.

17

103-54-21160

COLLAR

SN: 65001-UP

1шт.

18

01643-31232

WASHER

SN: 65001-UP

1шт.

19

01010-81230

BOLT

SN: 65001-UP

4шт.

20

124-54-26540

WASHER

SN: 65001-UP

4шт.

Выбрано товаров: 20