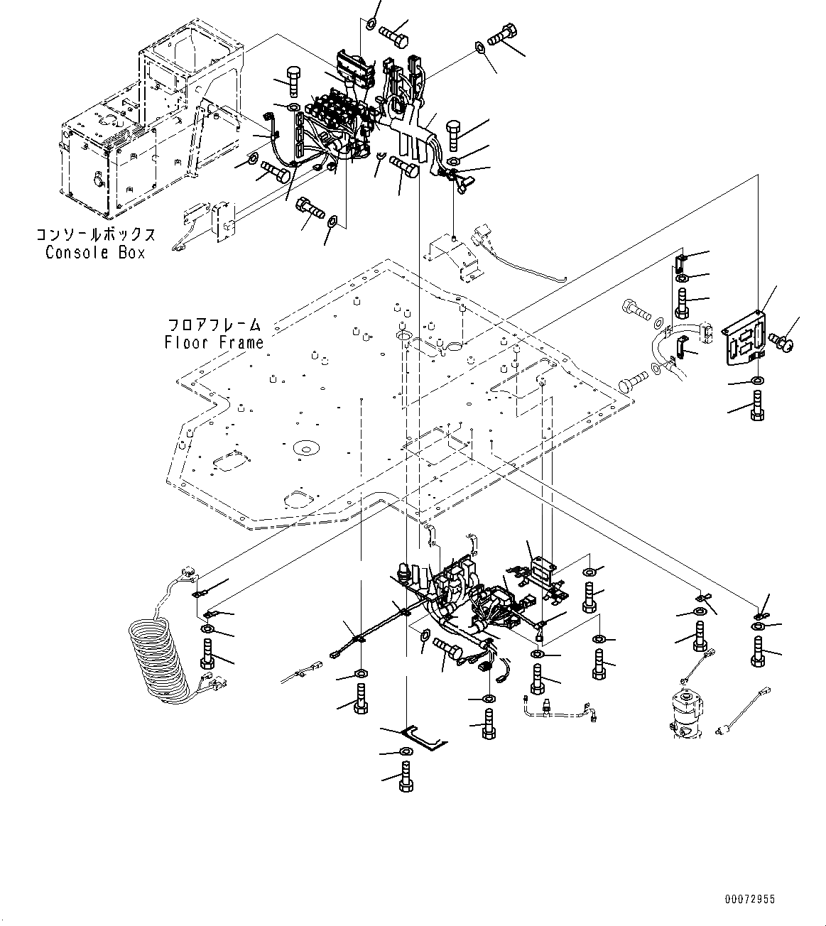
Запчасти Komatsu WA600-6R ПОЛ, ПОЛ, ПРОВОДКА (№-) ПОЛ, ДЛЯ MACHINE С PRINTER ТИП ДАТЧИК ВЕСА, С VHMS (VHMS), С MM РЕМЕНЬ БЕЗОПАСНОСТИ

Схема запчастей Komatsu WA600-6R - ПОЛ, ПОЛ, ПРОВОДКА (№-) ПОЛ, ДЛЯ MACHINE С PRINTER ТИП ДАТЧИК ВЕСА, С VHMS (VHMS), С MM РЕМЕНЬ БЕЗОПАСНОСТИ
6
7
10
18
19
35
17
16
5
17
16
15
14
15
14
5
5
10
5
6
14
15
2
9
17
16
3
14
15
5
5
9
8
15
14
14
15
15
14
12
4
1
13
11
23
30
36
31
24
29
29
25
21
22
20
20
21
22
20
22
20
21
27
28
26
34
32
33
FIT
1:1
100%

Артикул

Название

Примечание

Количество

1

426-06-32158

Wiring Harness

SN: 65021-UP

1шт.

|$1

283-06-16110

Box, Fuse

SN: 65021-UP

2шт.

|$2

426-06-31550

Connector, DRC12-24PBE

SN: 65021-UP

1шт.

|$3

426-06-31570

Connector, DRC12-40PAE

SN: 65021-UP

1шт.

|$4

426-06-31610

Connector, DRC12-24PAE

SN: 65021-UP

1шт.

|$5

426-06-31630

Connector, DRC12-40PBE

SN: 65021-UP

1шт.

|$6

426-06-31650

Connector, DRC12-70PAE

SN: 65021-UP

1шт.

2

14X-911-4551

Clip

SN: 65021-UP

2шт.

3

04434-50810

Clip

SN: 65021-UP

2шт.

4

04434-51008

Clip

SN: 65021-UP

1шт.

5

04434-51010

Clip

SN: 65021-UP

2шт.

6

04434-51710

Clip

SN: 65021-UP

2шт.

7

04434-52110

Clip

SN: 65021-UP

1шт.

8

04434-52210

Clip

SN: 65021-UP

1шт.

9

04434-52511

Clip

SN: 65021-UP

2шт.

10

04434-53211

Clip

SN: 65021-UP

2шт.

11

04434-53411

Clip

SN: 65021-UP

1шт.

12

01010-80812

Bolt

SN: 65021-UP

1шт.

13

01643-30823

Washer

SN: 65021-UP

1шт.

14

01010-81016

Bolt

SN: 65021-UP

10шт.

15

01643-31032

Washer

SN: 65021-UP

10шт.

16

01010-81020

Bolt

SN: 65021-UP

3шт.

17

01643-31032

Washer

SN: 65021-UP

3шт.

18

01010-81025

Bolt

SN: 65021-UP

2шт.

19

01643-31032

Washer

SN: 65021-UP

2шт.

20

08193-21012

Clip

SN: 65021-UP

5шт.

21

01010-81016

Bolt

SN: 65021-UP

5шт.

22

01643-31032

Washer

SN: 65021-UP

5шт.

23

426-06-32672

Bracket

SN: 65021-UP

1шт.

24

01010-81020

Bolt

SN: 65021-UP

2шт.

25

01643-31032

Washer

SN: 65021-UP

2шт.

26

426-06-32660

Bracket

SN: 65021-UP

1шт.

27

01010-81020

Bolt

SN: 65021-UP

2шт.

28

01643-31032

Washer

SN: 65021-UP

2шт.

29

425-03-11420

Plate

SN: 65021-UP

2шт.

30

01010-81020

Bolt

SN: 65021-UP

2шт.

31

01643-31032

Washer

SN: 65021-UP

2шт.

32

426-06-32871

Plate

SN: 65021-UP

1шт.

33

01010-80612

Bolt

SN: 65021-UP

2шт.

34

01643-30623

Washer

SN: 65021-UP

2шт.

35

426-06-32862

Sheet

SN: 65021-UP

1шт.

36

01023-20412

Screw

SN: 65021-UP

20шт.

Выбрано товаров: 42