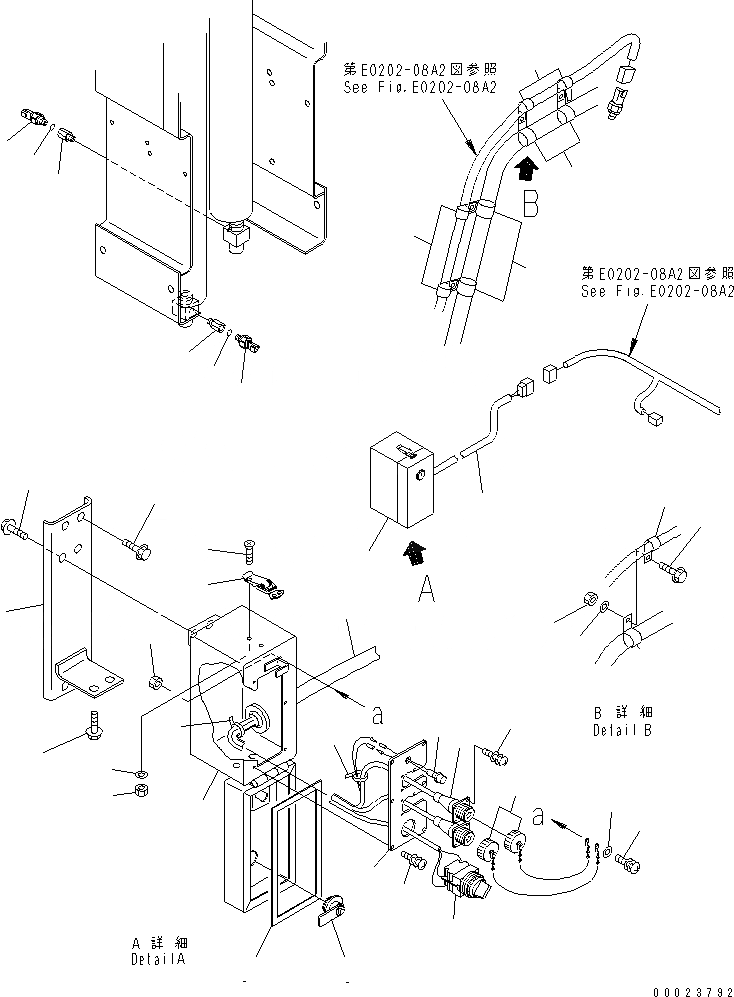
Запчасти Komatsu WA700-3 ЗАДН. Э/ПРОВОДКА (ЗАДН. РАМА Э/ПРОВОДКА /) (С VHMS)(№-7) ЭЛЕКТРИКА

Схема запчастей Komatsu WA700-3 - ЗАДН. Э/ПРОВОДКА (ЗАДН. РАМА Э/ПРОВОДКА /) (С VHMS)(№-7) ЭЛЕКТРИКА
1
2
3
3
3
4
4
5
6
7
8
9
10
11
12
13
14
15
16
17
18
19
19
20
21
21
22
22
23
23
24
24
26
26
26
27
27
27
28
29
30
FIT
1:1
100%

Артикул

Название

Примечание

Количество

1

428-06-22670

WIRING HARNESS

SN: 51001-UP

1шт.

2

428-06-22960

BRACKET

SN: 51001-UP

1шт.

3

01435-01016

BOLT

SN: 51001-UP

8шт.

|$5

569-97-82500

BOX ASS'Y

SN: 51001-UP

1шт.

|$6

569-97-82510

BOX SUB ASS'Y

SN: 51001-UP

1шт.

4

569-97-82520

BOX

SN: 51001-UP

1шт.

4

416-09-12210

HINGE

SN: 51001-UP

1шт.

5

205-60-71220

LOCK ASS'Y

SN: 51001-UP

1шт.

6

569-97-82550

SEAL

SN: 51001-UP

1шт.

7

56B-07-12550

CATCH

SN: 51001-UP

1шт.

8

01236-40308

SCREW

SN: 51001-UP

4шт.

9

01580-60302

NUT

SN: 51001-UP

4шт.

10

01640-20305

WASHER

SN: 51001-UP

4шт.

11

569-97-82560

PANEL

SN: 51001-UP

1шт.

12

01023-70414

SCREW

SN: 51001-UP

6шт.

13

569-97-82570

LAMP

SN: 51001-UP

1шт.

14

569-97-82580

SWITCH

SN: 51001-UP

1шт.

15

562-43-15810

CAP

SN: 51001-UP

2шт.

16

01023-60308

SCREW

SN: 51001-UP

1шт.

17

01580-60302

NUT

SN: 51001-UP

1шт.

18

01640-20305

WASHER

SN: 51001-UP

1шт.

19

569-97-82410

WIRING HARNESS

SN: 51001-UP

1шт.

20

01023-70310

SCREW

SN: 51001-UP

8шт.

21

08034-20519

BAND

SN: 51001-UP

2шт.

22

7861-93-1650

SENSOR

SN: 51001-UP

2шт.

23

428-43-27710

JOINT

SN: 51001-UP

2шт.

24

07002-11423

O-RING

SN: 51001-UP

2шт.

26

04434-53411

CLIP

SN: 51001-UP

4шт.

27

04434-51410

CLIP

SN: 51001-UP

4шт.

28

01435-01016

BOLT

SN: 51001-UP

4шт.

29

01643-31032

WASHER

SN: 51001-UP

4шт.

30

01580-11008

NUT

SN: 51001-UP

4шт.

Выбрано товаров: 32