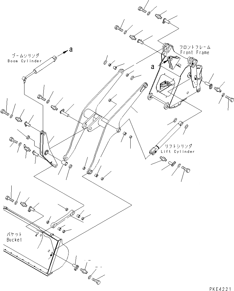
Запчасти Komatsu WA80-3-CN РУКОЯТЬ И КОЛЕНЧАТЫЙ РЫЧАГ (ПОЛУ-ВЫСОК. ПОДЪЕМ РУКОЯТЬ) РАБОЧЕЕ ОБОРУДОВАНИЕ

Схема запчастей Komatsu WA80-3-CN - РУКОЯТЬ И КОЛЕНЧАТЫЙ РЫЧАГ (ПОЛУ-ВЫСОК. ПОДЪЕМ РУКОЯТЬ) РАБОЧЕЕ ОБОРУДОВАНИЕ
1
2
2
3
4
4
4
4
4
4
5
6
7
7
8
9
9
10
10
10
10
11
11
12
12
13
14
15
16
17
18
19
20
21
22
23
24
25
25
25
25
26
27
28
28
28
28
28
28
28
28
28
29
29
29
29
29
29
29
29
29
FIT
1:1
100%

Артикул

Название

Примечание

Количество

|1

415-850-2100

BOOM ASS'Y

SN: 10001-UP

1шт.

1

0

BOOM

SN: 10001-UP

1шт.

2

415-70-11810

BUSHING

SN: 10001-UP

4шт.

3

415-70-11890

BUSHING

SN: 10001-UP

2шт.

4

07145-00045

SEAL,DUST

SN: 10001-UP

12шт.

|5

415-70-21200

BELLCRANK ASS'Y

SN: 10001-UP

1шт.

5

0

BELLCRANK

SN: 10001-UP

1шт.

6

415-70-11860

BUSHING

SN: 10001-UP

1шт.

7

07145-00060

SEAL,DUST

SN: 10001-UP

2шт.

|8

415-850-2200

LINK ASS'Y

SN: 10001-UP

1шт.

8

0

LINK

SN: 10001-UP

1шт.

9

415-70-11810

BUSHING

SN: 10001-UP

2шт.

10

07145-00045

SEAL,DUST

SN: 10001-UP

4шт.

11

415-70-11910

PIN

SN: 10001-UP

3шт.

12

07020-00000

FITTING,GREASE

SN: 10001-UP

3шт.

13

415-70-11933

PIN

SN: 11001-UP

1шт.

|13

415-70-11932

PIN

SN: 10001-11000

1шт.

14

07020-00675

FITTING,GREASE

SN: 10001-UP

1шт.

15

415-70-11942

PIN

SN: 11001-UP

1шт.

|15

415-70-11941

PIN

SN: 10001-11000

1шт.

16

07020-00000

FITTING,GREASE

SN: 10001-UP

1шт.

17

415-70-11942

PIN

SN: 11001-UP

1шт.

|17

415-70-11941

PIN

SN: 10001-11000

1шт.

18

07020-00000

FITTING,GREASE

SN: 10001-UP

1шт.

19

415-70-11960

PIN

SN: 10001-UP

1шт.

20

07020-00000

FITTING,GREASE

SN: 10001-UP

1шт.

21

415-70-11990

PIN

SN: 10001-UP

2шт.

22

07020-00000

FITTING,GREASE

SN: 10001-UP

2шт.

23

415-70-11980

PIN

SN: 10001-UP

2шт.

24

07020-00000

FITTING,GREASE

SN: 10001-UP

2шт.

25

20T-70-19130

SPACER¤ 1.0MM

SN: 10001-UP

8шт.

26

415-70-11880

PIN

SN: 10001-UP

2шт.

27

07020-00000

FITTING,GREASE

SN: 10001-UP

2шт.

28

01010-81220

BOLT

SN: 10001-UP

13шт.

29

175-54-34170

WASHER

SN: 10001-UP

13шт.

Выбрано товаров: 35