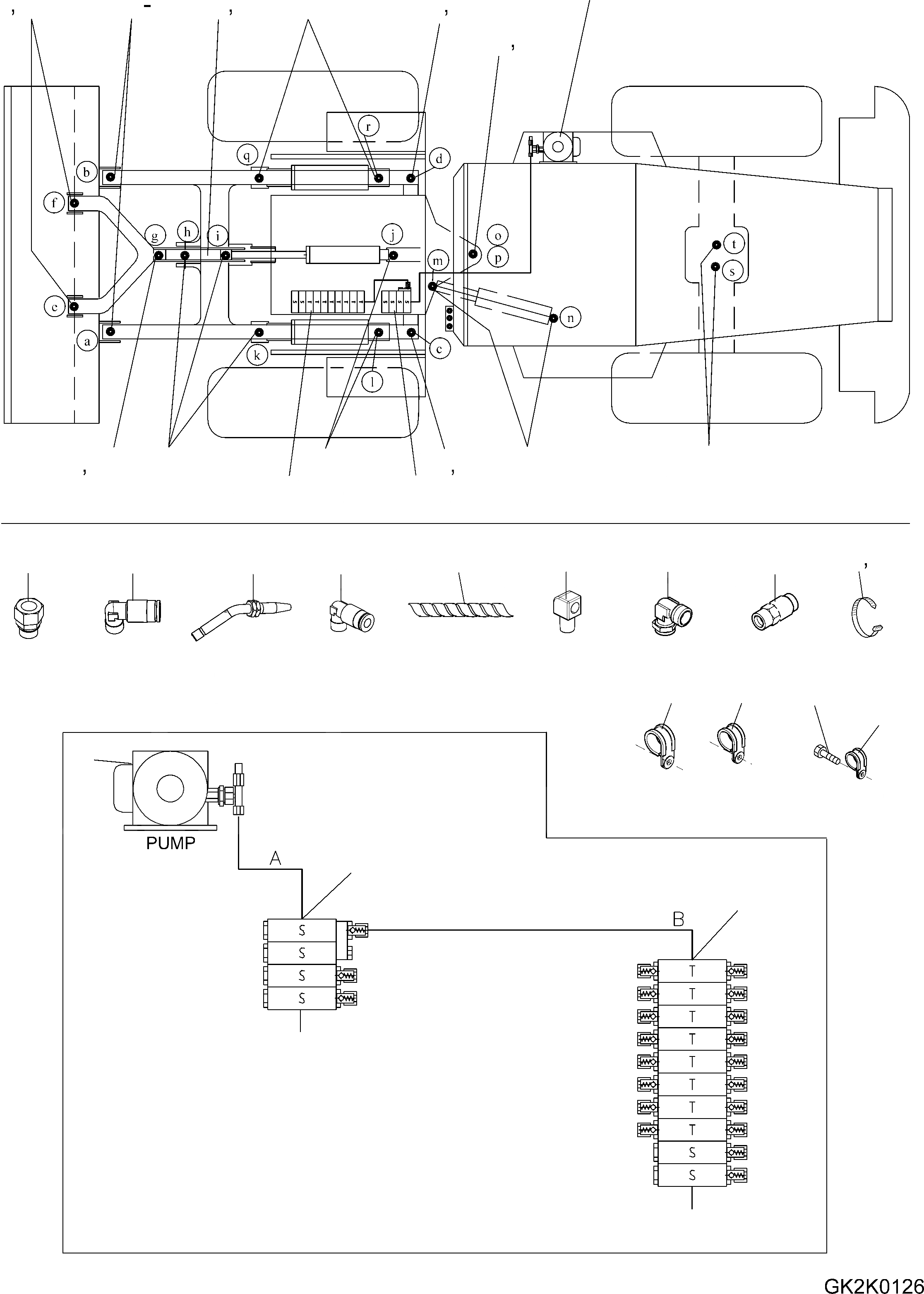
Запчасти Komatsu WA80-6 CENTRAL СМАЗКА СИСТЕМА (ЧАСТИ) J ОСНОВНАЯ РАМА И ЕЕ ЧАСТИ

Схема запчастей Komatsu WA80-6 - CENTRAL СМАЗКА СИСТЕМА (ЧАСТИ) J ОСНОВНАЯ РАМА И ЕЕ ЧАСТИ
1
2
3
7
12
17
18
20
19
14
13
12
11
10
9
7
6
5
4
7
10
7
3
7
2
4
5
7
11
1
10
11
4
5
7
16
15
6
4
8
7
FIT
1:1
100%

Артикул

Название

Примечание

Количество

1

42T-09-H3740

PISTON PUMP

SN: H60051-UP

1шт.

2

42U-09-H0P09

FEEDER ASSEMBLY

SN: H60051-UP

1шт.

3

42U-09-H0P10

FEEDER ASSEMBLY

SN: H60051-UP

1шт.

4

42T-09-H3750

CONNECTOR

SN: H60051-UP

4шт.

5

42T-09-H3760

ELBOW

SN: H60051-UP

4шт.

6

42T-09-H4090

TUBE, 45°

SN: H60051-UP

2шт.

7

42W-09-H2270

ELBOW

SN: H60051-UP

12шт.

8

42W-09-H0P00

HOSE, 5M

SN: H60051-UP

-26шт.

|$9

42W-09-H0P01

HOSE, 10M

SN: H60051-UP

-26шт.

|$10

42W-09-H0P02

HOSE, 25M

SN: H60051-UP

-26шт.

9

42W-09-H0P11

HOSE PROTECTOR, 10M, 10MM

SN: H60051-UP

-26шт.

|$12

42W-09-H0P12

HOSE PROTECTOR, 10M, 16MM

SN: H60051-UP

-26шт.

10

425-09-H0240

ELBOW

SN: H60051-UP

3шт.

11

419-09-H2980

BANJO ELBOW

SN: H60051-UP

4шт.

12

419-09-H2780

UNION

SN: H60051-UP

1шт.

13

421-09-H3100

BAND

SN: H60051-UP

-26шт.

14

421-09-H3110

BAND

SN: H60051-UP

-26шт.

15

42T-09-H3770

CONNECTOR, MALE

SN: H60051-UP

2шт.

16

01010-80630

BOLT

SN: H60051-UP

4шт.

17

42T-09-H3780

CLIP

SN: H60051-UP

7шт.

18

42T-09-H3790

CLIP

SN: H60051-UP

1шт.

19

42T-09-H3800

CLIP

SN: H60051-UP

2шт.

20

01010-80610

SCREW

SN: H60051-UP

10шт.

Выбрано товаров: 23