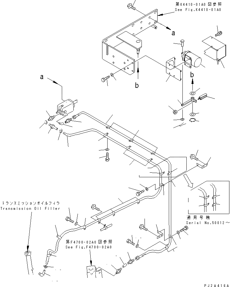
Запчасти Komatsu WA800-3 УПРАВЛ-Е ДВИГАТЕЛЕМ (SERVO СИСТЕМА ТРУБ ЦИЛИНДРА И СОЛЕНОИДНЫЙ КЛАПАН КРЕПЛЕНИЕ) КАБИНА ОПЕРАТОРА И СИСТЕМА УПРАВЛЕНИЯ

Схема запчастей Komatsu WA800-3 - УПРАВЛ-Е ДВИГАТЕЛЕМ (SERVO СИСТЕМА ТРУБ ЦИЛИНДРА И СОЛЕНОИДНЫЙ КЛАПАН     КРЕПЛЕНИЕ) КАБИНА ОПЕРАТОРА И СИСТЕМА УПРАВЛЕНИЯ
1
2
3
4
5
6
7
8
8
8
8
8
8
9
9
9
9
10
10
10
10
11
12
13
14
15
15
16
16
17
17
18
19
19
19
19
19
19
19
19
19
19
20
21
24
25
26
27
28
29
30
31
31
32
33
34
35
36
37
FIT
1:1
100%

Артикул

Название

Примечание

Количество

1

01435-01020

BOLT

SN: 50001-UP

4шт.

2

07323-B0300

ELBOW

SN: 50001-UP

1шт.

3

427-43-11330

CONNECTOR

SN: 50001-UP

1шт.

4

07102-20332

HOSE

SN: 50001-UP

1шт.

5

07238-10315

CONNECTOR

SN: 50001-UP

1шт.

6

07323-C0300

ELBOW

SN: 50001-UP

1шт.

7

07325-30300

NIPPLE

SN: 50001-UP

1шт.

8

08036-01814

CLIP

SN: 50012-UP

8шт.

|8

08036-01814

CLIP

SN: 50001-50011

7шт.

9

01010-81020

BOLT

SN: 50001-UP

7шт.

10

01643-31032

WASHER

SN: 50001-UP

7шт.

11

07325-30400

NIPPLE

SN: 50001-UP

1шт.

12

07323-A0400

ELBOW

SN: 50001-UP

1шт.

13

154-04-11510

NIPPLE

SN: 50001-UP

1шт.

14

07261-01448

HOSE

SN: 50001-UP

1шт.

15

07281-00259

CLAMP

SN: 50001-UP

2шт.

16

427-43-11340

BRACKET

SN: 50001-UP

2шт.

17

01435-01016

BOLT

SN: 50001-UP

4шт.

18

232-43-54460

ELBOW

SN: 50001-UP

1шт.

19

08036-02514

CLIP

SN: 50012-UP

12шт.

|19

08036-02514

CLIP

SN: 50001-50011

11шт.

20

01010-81016

BOLT

SN: 50012-UP

4шт.

|20

01010-81016

BOLT

SN: 50001-50011

3шт.

21

01643-31032

WASHER

SN: 50012-UP

4шт.

|21

01643-31032

WASHER

SN: 50001-50011

3шт.

24

421-06-11542

SOLENOID

SN: 50001-UP

1шт.

25

01010-80640

BOLT

SN: 50001-UP

4шт.

26

01643-30623

WASHER

SN: 50001-UP

4шт.

27

427-43-21140

COVER

SN: 50001-UP

1шт.

28

427-43-21151

COVER

SN: 50001-UP

1шт.

29

01023-10508

SCREW

SN: 50001-UP

4шт.

30

427-43-21120

LEVER ASS'Y

SN: 50001-UP

1шт.

|30

421-43-18850

BUSHING

SN: 50001-UP

2шт.

31

01640-21223

WASHER

SN: 50001-UP

2шт.

32

04064-01210

RING

SN: 50001-UP

1шт.

33

427-43-11270

YOKE

SN: 50001-UP

1шт.

34

01580-60504

NUT

SN: 50001-UP

1шт.

35

04205-10620

PIN

SN: 50001-UP

1шт.

36

01641-20608

WASHER

SN: 50001-UP

1шт.

37

04050-11612

PIN,COTTER

SN: 50001-UP

1шт.

Выбрано товаров: 40