Запчасти Komatsu WA800-3 ГИДРОЛИНИЯ ЭКСТРЕННОГО УПРАВЛЕНИЯ (ЭКСТРЕНН. КЛАПАН РУЛЕВОГО УПРАВЛЕНИЯ)(№8-) ГИДРАВЛИКА

Схема запчастей Komatsu WA800-3 - ГИДРОЛИНИЯ ЭКСТРЕННОГО УПРАВЛЕНИЯ (ЭКСТРЕНН. КЛАПАН РУЛЕВОГО УПРАВЛЕНИЯ)(№8-) ГИДРАВЛИКА
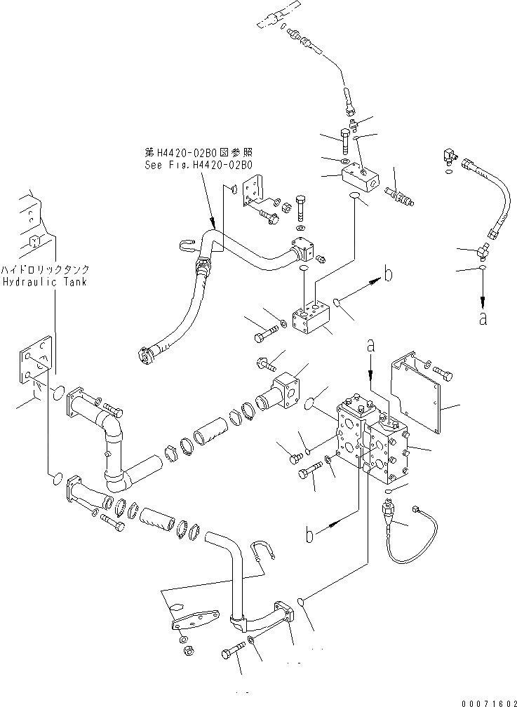
1
2
3
4
5
6
7
8
9
10
11
12
13
14
15
16
17
18
19
20
21
22
23
24
25
26
27
28
FIT
1:1
100%

Артикул

Название

Примечание

Количество

1

427-871-5260

TUBE

SN: 50086-UP

1шт.

2

07000-F3048

O-RING

SN: 50086-UP

1шт.

3

01435-01280

BOLT

SN: 50086-UP

4шт.

4

07040-12012

PLUG

SN: 50086-UP

1шт.

5

07002-22034

O-RING

SN: 50086-UP

1шт.

6

427-871-5320

BLOCK

SN: 50086-UP

1шт.

7

07000-F3048

O-RING

SN: 50086-UP

1шт.

8

01011-81275

BOLT

SN: 50086-UP

4шт.

9

01643-31232

WASHER

SN: 50086-UP

4шт.

10

427-871-5161

BODY

SN: 50086-UP

1шт.

11

07000-F3042

O-RING

SN: 50086-UP

1шт.

12

01010-81280

BOLT

SN: 50086-UP

4шт.

13

01643-31232

WASHER

SN: 50086-UP

4шт.

14

07230-20628

UNION

SN: 50086-UP

1шт.

15

07002-22434

O-RING

SN: 50086-UP

1шт.

16

427-875-2340

TUBE

SN: 50086-UP

1шт.

17

07000-F3048

O-RING

SN: 50086-UP

1шт.

18

07372-21245

BOLT

SN: 50086-UP

4шт.

19

01643-51232

WASHER

SN: 50086-UP

4шт.

20

07236-10210

ELBOW

SN: 50086-UP

1шт.

21

07002-21423

O-RING

SN: 50086-UP

1шт.

22

426-875-1100

VALVE ASS'Y

SN: 50086-UP

1шт.

23

700-94-55000

VALVE ASS'Y

SN: 50086-UP

1шт.

24

01011-81025

BOLT

SN: 50086-UP

4шт.

25

01643-51032

WASHER

SN: 50086-UP

4шт.

26

427-875-2150

BRACKET

SN: 50086-UP

1шт.

27

421-06-21980

SWITCH

SN: 50086-UP

1шт.

28

07002-22034

O-RING

SN: 50086-UP

1шт.

Выбрано товаров: 28