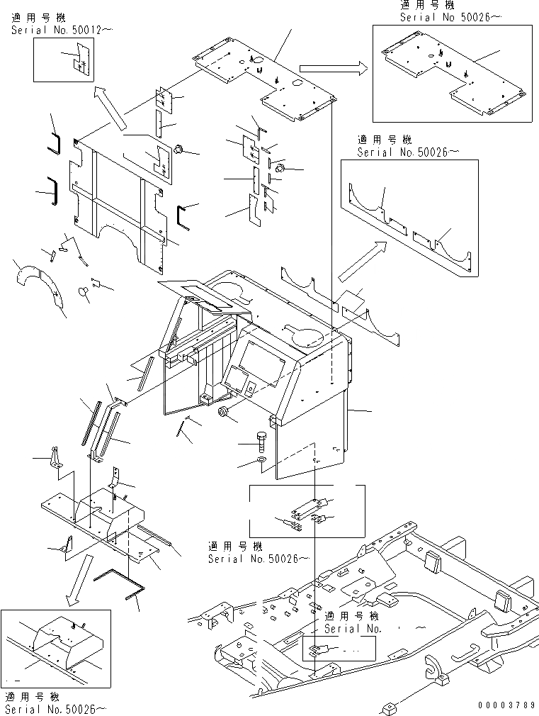
Запчасти Komatsu WA800-3 ОТСЕК ДВИГАТЕЛЯ(/) (ПРЕФИЛЬТР EXTENSION)(№-8) ЧАСТИ КОРПУСА

Схема запчастей Komatsu WA800-3 - ОТСЕК ДВИГАТЕЛЯ(/) (ПРЕФИЛЬТР EXTENSION)(№-8) ЧАСТИ КОРПУСА
1
2
3
3A
3B
3C
3C
4
5
6
7
7
8
9
10
11
12
12
13
14
15
16
16
17
17
17A
18
19
20
21
21
22
23
23
24
25
26
26
27
28
28
28
29
30
30
30
31
32
33
34
34
34
FIT
1:1
100%

Артикул

Название

Примечание

Количество

1

41F-54-11112

BULKHEAD

SN: 50026-UP

1шт.

1

41F-54-11110

BULKHEAD

SN: 50001-50025

1шт.

2

01011-82000

BOLT

SN: 50001-UP

8шт.

3

01643-32060

WASHER

SN: 50001-UP

8шт.

3A

427-09-11210

SHIM, 0.5MM

SN: .-UP

24шт.

3B

427-54-22360

PLATE

SN: 50026-UP

10шт.

3C

427-54-22370

PLATE

SN: 50026-UP

12шт.

4

427-54-11650

SEAL,DOOR

SN: 50001-UP

2шт.

5

425-54-14470

CUSHION

SN: 50001-UP

2шт.

6

425-54-14460

CUSHION

SN: 50001-UP

2шт.

7

427-54-11640

SEAL,DOOR

SN: 50001-UP

2шт.

8

08037-01610

GROMMET

SN: 50001-UP

3шт.

9

427-54-21312

SUPPORT

SN: 50026-UP

1шт.

9

427-54-21310

SUPPORT

SN: 50001-50025

1шт.

10

427-54-21320

BRACKET,L.H.

SN: 50001-UP

1шт.

11

427-54-21470

BRACKET,R.H.

SN: 50001-UP

1шт.

12

427-54-21293

BRACKET

SN: 50026-UP

1шт.

12

427-54-21292

BRACKET

SN: 50001-50025

1шт.

13

427-54-21510

SEAL

SN: 50001-UP

2шт.

14

427-54-21520

SEAL

SN: 50001-UP

1шт.

15

427-54-21480

BRACKET

SN: 50001-UP

2шт.

16

427-54-21273

BRACKET

SN: 50026-UP

1шт.

16

427-54-21271

BRACKET

SN: 50001-50025

1шт.

17

427-54-21283

PLATE,L.H

SN: 50026-UP

1шт.

17

427-54-21281

PLATE

SN: 50001-50025

2шт.

17A

427-54-22271

PLATE,R.H.

SN: 50026-UP

1шт.

18

427-54-21331

PLATE

SN: 50001-UP

1шт.

19

427-54-21340

RUBBER

SN: 50001-UP

1шт.

20

427-54-21350

RUBBER

SN: 50001-UP

1шт.

21

427-54-21361

RUBBER

SN: 50001-UP

2шт.

22

427-54-21371

RUBBER

SN: 50001-UP

1шт.

23

427-54-21382

RUBBER

SN: 50012-UP

1шт.

23

427-54-21381

RUBBER

SN: 50001-50011

1шт.

24

427-54-21391

RUBBER

SN: 50001-UP

1шт.

25

427-54-21630

RUBBER

SN: 50001-UP

1шт.

26

427-54-11760

SEAL

SN: 50001-UP

2шт.

27

427-54-11770

SEAL

SN: 50001-UP

1шт.

28

427-54-13890

PLATE

SN: 50001-UP

8шт.

29

427-54-13690

PLATE

SN: 50001-UP

2шт.

30

427-54-15130

PLATE

SN: 50001-UP

6шт.

31

427-54-15130

PLATE

SN: 50001-UP

2шт.

32

427-54-15120

PLATE

SN: 50001-UP

1шт.

33

427-54-13880

PLATE

SN: 50001-UP

2шт.

34

362-56-41740

RIVET

SN: 50001-UP

53шт.

Выбрано товаров: 44