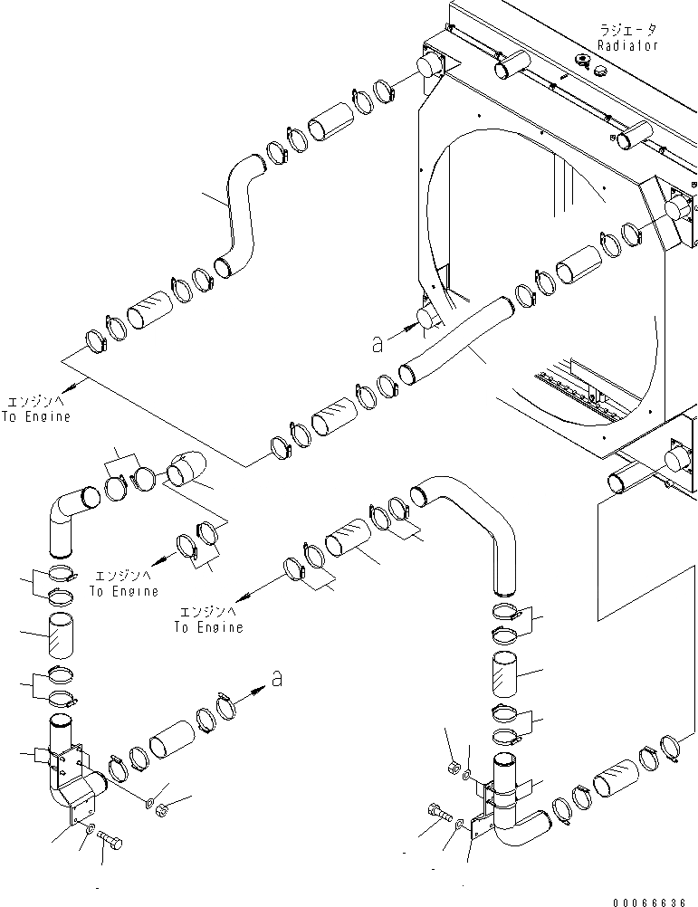
Запчасти Komatsu WA800-3E0 ЛИНИЯ ОХЛАЖДЕНИЯ (ТРУБКИ ПОСЛЕОХЛАДИТЕЛЯ)(№7-) СИСТЕМА ОХЛАЖДЕНИЯ

Схема запчастей Komatsu WA800-3E0 - ЛИНИЯ ОХЛАЖДЕНИЯ (ТРУБКИ ПОСЛЕОХЛАДИТЕЛЯ)(№7-) СИСТЕМА ОХЛАЖДЕНИЯ
1
1
2
2
3
3
3
3
4
4
5
5
6
6
7
7
8
8
9
9
10
11
11
11
11
12
FIT
1:1
100%

Артикул

Название

Примечание

Количество

1

427-03-22611

TUBE

SN: 70002-UP

2шт.

2

566-02-6E141

HOSE

SN: 70002-70021

2шт.

3

07299-00105

CLAMP

SN: 70002-70021

8шт.

4

427-03-22632

PLATE

SN: 70002-UP

2шт.

5

01010-81230

BOLT

SN: 70002-UP

4шт.

6

01643-31232

WASHER

SN: 70002-UP

4шт.

7

07283-31079

CLIP

SN: 70002-UP

4шт.

8

01597-01211

NUT

SN: 70002-UP

8шт.

9

01643-31232

WASHER

SN: 70002-UP

8шт.

10

566-02-6E141

HOSE

SN: 70002-70021

1шт.

11

07299-00105

CLAMP

SN: 70002-70021

8шт.

12

566-02-6E151

ELBOW

SN: 70002-70021

1шт.

Выбрано товаров: 12