Запчасти Komatsu WA800-3E0 ТОРМОЗНАЯ ГИДРОЛИНИЯ (ОХЛАДИТЕЛЬ ЛИНИЯ) (ПЕРЕДНИЙ МОСТ) (/)(№7-) КАБИНА ОПЕРАТОРА И СИСТЕМА УПРАВЛЕНИЯ

Схема запчастей Komatsu WA800-3E0 - ТОРМОЗНАЯ ГИДРОЛИНИЯ (ОХЛАДИТЕЛЬ ЛИНИЯ) (ПЕРЕДНИЙ МОСТ) (/)(№7-) КАБИНА ОПЕРАТОРА И СИСТЕМА УПРАВЛЕНИЯ
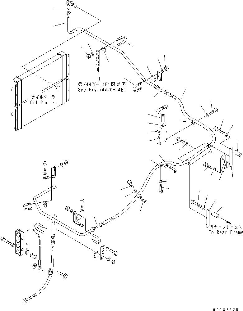
1
2
3
4
5
6
7
8
9
10
11
12
13
14
15
16
17
18
18
19
20
21
21
22
22
23
23
24
25
26
27
27
28
28
28
29
29
30
30
31
32
FIT
1:1
100%

Артикул

Название

Примечание

Количество

1

427-S05-5580

TUBE

SN: 70005-UP

1шт.

2

02896-11018

O-RING

SN: 70005-UP

1шт.

3

01597-01009

NUT

SN: 70005-UP

2шт.

4

01643-31032

WASHER

SN: 70005-UP

2шт.

5

07283-52737

SEAT

SN: 70005-UP

1шт.

6

07283-32738

CLIP

SN: 70005-UP

1шт.

7

01597-01009

NUT

SN: 70005-UP

2шт.

8

01643-31032

WASHER

SN: 70005-UP

2шт.

9

07283-52737

SEAT

SN: 70005-UP

1шт.

10

07283-32738

CLIP

SN: 70005-UP

1шт.

11

427-S05-3230

BRACKET

SN: 70005-UP

1шт.

12

421-877-2250

SPACER

SN: 70005-UP

1шт.

13

01010-81060

BOLT

SN: 70005-UP

1шт.

14

01643-31032

WASHER

SN: 70005-UP

1шт.

15

04434-52711

CLIP

SN: 70005-UP

1шт.

16

01010-81025

BOLT

SN: 70005-UP

1шт.

17

01643-31032

WASHER

SN: 70005-UP

1шт.

18

427-S05-3220

PLATE

SN: 70005-UP

2шт.

19

427-S05-5810

BRACKET

SN: 70005-UP

1шт.

20

427-S05-3250

BRACKET

SN: 70005-UP

1шт.

21

01010-81060

BOLT

SN: 70005-UP

3шт.

22

01643-31032

WASHER

SN: 70005-UP

3шт.

23

421-877-2250

SPACER

SN: 70005-UP

3шт.

24

01010-81020

BOLT

SN: 70005-UP

1шт.

25

01643-31032

WASHER

SN: 70005-UP

1шт.

26

02762-00631

HOSE

SN: 70005-UP

1шт.

27

02896-11018

O-RING

SN: 70005-UP

2шт.

28

04434-52711

CLIP

SN: 70005-UP

5шт.

29

01010-81016

BOLT

SN: 70005-UP

3шт.

30

01643-31032

WASHER

SN: 70005-UP

3шт.

31

01010-81020

BOLT

SN: 70005-UP

2шт.

32

01643-31032

WASHER

SN: 70005-UP

2шт.

Выбрано товаров: 0