Запчасти Komatsu WA800-3E0 CURTAIN(№7-) КАБИНА ОПЕРАТОРА И СИСТЕМА УПРАВЛЕНИЯ

Схема запчастей Komatsu WA800-3E0 - CURTAIN(№7-) КАБИНА ОПЕРАТОРА И СИСТЕМА УПРАВЛЕНИЯ
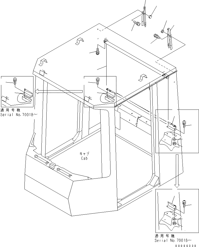
1
2
3
4
4
5
5
6
6
6
6
6
6
6
7
7
8
8
9
9
FIT
1:1
100%

Артикул

Название

Примечание

Количество

1

426-56-21781

CURTAIN

SN: 70001-UP

1шт.

2

426-56-21811

PLATE,L.H.

SN: 70001-UP

1шт.

3

426-56-21821

PLATE,R.H.

SN: 70001-UP

1шт.

4

427-56-21610

PLATE,L.H.

SN: 70018-UP

1шт.

4

425-56-21980

PLATE,L.H.

SN: 70001-70017

1шт.

5

427-56-21620

PLATE,R.H.

SN: 70018-UP

1шт.

5

425-56-21990

PLATE,R.H.

SN: 70001-70017

1шт.

6

01023-70620

SCREW

SN: 70001-UP

12шт.

7

01580-10605

NUT

SN: 70001-UP

2шт.

8

01640-20610

WASHER

SN: 70001-UP

2шт.

9

09415-01008

CAP

SN: 70018-UP

4шт.

9

09415-01008

CAP

SN: 70001-70017

6шт.

Выбрано товаров: 12