Запчасти Komatsu WA900-1 БОКОВ. КРЫШКА ДВИГ. (/)(№7-) РАМА И ЧАСТИ КОРПУСА

Схема запчастей Komatsu WA900-1 - БОКОВ. КРЫШКА ДВИГ. (/)(№7-) РАМА И ЧАСТИ КОРПУСА
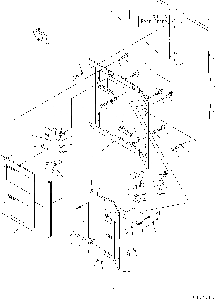
1
2
3
4
4
5
6
7
8
9
10
10
10
11
11
11
12
12
12
13
13
14
14
15
15
16
16
17
17
18
18
19
19
20
21
21
21
22
22
22
23
24
25
26
27
28
29
30
31
32
33
34
35
36
37
38
39
40
FIT
1:1
100%

Артикул

Название

Примечание

Количество

1

427-T86-2591

COVER

SN: 10007-UP

1шт.

2

01010-81230

BOLT

SN: 10007-UP

4шт.

3

01010-81225

BOLT

SN: 10007-UP

4шт.

4

01643-31232

WASHER

SN: 10007-UP

8шт.

5

427-T86-2582

DOOR,L.H.

SN: 10007-UP

1шт.

6

01010-81220

BOLT

SN: 10007-UP

4шт.

7

01643-31232

WASHER

SN: 10007-UP

4шт.

8

427-T86-2561

PLATE

SN: 10007-UP

1шт.

9

427-T86-2541

BAR

SN: 10007-UP

1шт.

10

04205-31025

PIN

SN: 10007-UP

8шт.

11

04052-11038

PIN,SPRING

SN: 10007-UP

8шт.

12

01641-21016

WASHER

SN: 10007-UP

8шт.

13

421-54-24950

BRACKET

SN: 10007-UP

2шт.

14

04052-11038

PIN,SPRING

SN: 10007-UP

2шт.

15

01641-21016

WASHER

SN: 10007-UP

2шт.

16

01435-01025

BOLT

SN: 10007-UP

4шт.

17

426-54-11990

PLATE

SN: 10007-UP

2шт.

18

01010-81225

BOLT

SN: 10007-UP

4шт.

19

01643-31232

WASHER

SN: 10007-UP

4шт.

20

423-54-24630

ROD

SN: 10007-UP

1шт.

21

01641-20608

WASHER

SN: 10007-UP

4шт.

22

04052-10633

PIN

SN: 10007-UP

4шт.

23

423-54-24650

BELL CRANK

SN: 10007-UP

1шт.

24

01641-21016

WASHER

SN: 10007-UP

1шт.

25

04052-11038

PIN,SPRING

SN: 10007-UP

1шт.

26

427-T86-2510

ROD

SN: 10007-UP

1шт.

27

417-54-21610

SPRING,L.H.

SN: 10007-UP

1шт.

28

417-54-21650

STRIKER

SN: 10007-UP

1шт.

29

01641-21016

WASHER

SN: 10007-UP

1шт.

30

04052-11038

PIN

SN: 10007-UP

1шт.

31

22T-54-24280

SHEET

SN: 10007-UP

1шт.

32

01641-20608

WASHER

SN: 10007-UP

4шт.

33

04052-10833

PIN

SN: 10007-UP

4шт.

34

23S-54-27470

SEAL,DOOR

SN: 10007-UP

1шт.

35

427-T86-2531

DOOR,L.H.

SN: 10007-UP

1шт.

36

01010-81225

BOLT

SN: 10007-UP

4шт.

37

01643-31232

WASHER

SN: 10007-UP

4шт.

38

427-T86-2550

PLATE

SN: 10007-UP

1шт.

39

427-T86-2541

BAR

SN: 10007-UP

1шт.

40

22T-54-12290

SEAL,DOOR

SN: 10007-UP

1шт.

Выбрано товаров: 40