Запчасти Komatsu WA900-1 МЕХАНИЗМ ПЕДАЛИ АКСЕЛЕРАТОРА(/) КОМПОНЕНТЫ ДВИГАТЕЛЯ И ЭЛЕКТРИКА

Схема запчастей Komatsu WA900-1 - МЕХАНИЗМ ПЕДАЛИ АКСЕЛЕРАТОРА(/) КОМПОНЕНТЫ ДВИГАТЕЛЯ И ЭЛЕКТРИКА
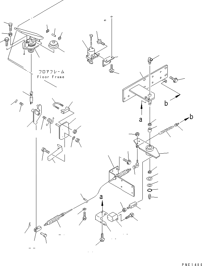
1
2
3
4
4
5
6
7
8
9
10
11
12
13
14
15
15
16
17
18
19
20
21
22
23
24
25
26
27
28
29
30
31
32
33
34
34
35
36
37
38
39
40
41
42
43
44
45
46
47
48
49
50
51
51
52
FIT
1:1
100%

Артикул

Название

Примечание

Количество

|$0

421-43-11310

PEDAL ASS'Y

SN: 10001-UP

1шт.

1

417-43-11210

PEDAL

SN: 10001-UP

1шт.

2

417-43-11310

ROD

SN: 10001-UP

1шт.

3

417-43-11320

PIN

SN: 10001-UP

1шт.

4

417-43-11330

CLIP

SN: 10001-UP

2шт.

5

417-43-11360

BOOT

SN: 10001-UP

1шт.

6

417-43-11220

PLATE

SN: 10001-UP

1шт.

7

421-43-11320

SUPPORT

SN: 10001-UP

1шт.

8

01010-80616

BOLT

SN: 10001-UP

2шт.

9

417-43-11350

NUT

SN: 10001-UP

2шт.

10

01643-30623

WASHER

SN: 10001-UP

1шт.

11

417-43-11290

SUPPORT

SN: 10001-UP

1шт.

12

417-43-11270

U-BOLT

SN: 10001-UP

1шт.

13

417-43-11280

NUT

SN: 10001-UP

2шт.

14

417-43-11230

LEVER

SN: 10001-UP

1шт.

15

417-43-11250

BEARING

SN: 10001-UP

2шт.

16

417-43-11240

SPRING

SN: 10001-UP

1шт.

17

417-43-11260

CLIP

SN: 10001-UP

1шт.

18

01010-80860

BOLT

SN: 10001-UP

1шт.

19

01580-10806

NUT

SN: 10001-UP

1шт.

20

01435-00620

BOLT

SN: 10001-UP

3шт.

21

421-43-11216

CABLE

SN: 10001-UP

1шт.

22

04210-20624

YOKE

SN: 10001-UP

1шт.

23

04205-10620

PIN

SN: 10001-UP

1шт.

24

04050-11612

PIN,COTTER

SN: 10001-UP

1шт.

25

08036-01214

CLIP

SN: 10001-UP

1шт.

26

01010-81020

BOLT

SN: 10001-UP

1шт.

27

01643-31032

WASHER

SN: 10001-UP

1шт.

28

427-43-11480

BRACKET

SN: 10001-UP

1шт.

29

01435-01020

BOLT

SN: 10001-UP

4шт.

30

428-43-11131

BRACKET

SN: 10001-UP

1шт.

31

01435-01020

BOLT

SN: 10001-UP

4шт.

32

428-43-11160

LEVER

SN: 10001-UP

1шт.

33

06120-02030

BEARING

SN: 10001-UP

1шт.

34

06122-02004

SEAL

SN: 10001-UP

2шт.

35

01643-32060

WASHER

SN: 10001-UP

2шт.

36

01643-31845

WASHER

SN: 10001-UP

1шт.

37

04064-01812

RING,SNAP

SN: 10001-UP

1шт.

38

07020-00900

FITTING,GREASE

SN: 10001-UP

1шт.

39

04256-40615

JOINT

SN: 10001-UP

1шт.

40

01596-00606

NUT,LOCK

SN: 10001-UP

1шт.

41

426-43-11180

ROD

SN: 10001-UP

1шт.

42

415-43-11240

SPRING

SN: 10001-UP

1шт.

43

428-43-11150

BRACKET

SN: 10001-UP

1шт.

44

01435-00616

BOLT

SN: 10001-UP

2шт.

45

427-43-11240

AIR CYLINDER ASS'Y

SN: 10001-UP

1шт.

46

01252-40550

BOLT

SN: 10001-UP

2шт.

47

427-43-11270

YOKE

SN: 10001-UP

1шт.

48

01580-60504

NUT

SN: 10001-UP

1шт.

49

427-43-11291

PLATE

SN: 10001-UP

1шт.

50

425-06-11150

VALVE

SN: 10001-UP

1шт.

51

01435-00816

BOLT

SN: 10001-UP

4шт.

52

07042-20108

PLUG

SN: 10001-UP

1шт.

Выбрано товаров: 53