Запчасти Komatsu WA900-3 КРЕПЛЕНИЯ АККУМУЛЯТОРАING (КОРПУС И КРЕПЛЕНИЕ)(№-) ЭЛЕКТРИКА

Схема запчастей Komatsu WA900-3 - КРЕПЛЕНИЯ АККУМУЛЯТОРАING (КОРПУС И КРЕПЛЕНИЕ)(№-) ЭЛЕКТРИКА
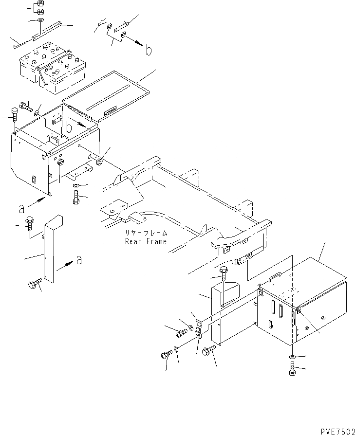
1
2
3
4
5
5
6
7
7
7
8
9
10
11
12
13
14
14
14
14
15
16
17
18
19
19
19
20
21
22
22
FIT
1:1
100%

Артикул

Название

Примечание

Количество

1

427-06-24113

BOX,BATTERY, L.H.

SN: 50001-50013

1шт.

2

427-06-24123

BOX,BATTERY, R.H.

SN: 50001-50013

1шт.

3

427-06-24130

COVER,L.H.

SN: 50001-@

1шт.

4

427-06-24140

COVER,R.H.

SN: 50001-@

1шт.

5

01010-62450

BOLT

SN: 50001-@

4шт.

6

01010-62470

BOLT

SN: 50001-@

4шт.

7

01643-32460

WASHER

SN: 50001-@

8шт.

8

421-06-24230

BAR

SN: 50001-50013

2шт.

9

01641-20812

WASHER

SN: 50001-50013

4шт.

10

04052-10833

PIN,SNAP

SN: 50001-50013

2шт.

11

415-54-11980

CUSHION

SN: 50001-@

4шт.

12

08037-05022

GROMMET

SN: 50001-@

2шт.

13

421-06-12651

GROMMET

SN: 50001-@

2шт.

14

01435-01220

BOLT

SN: 50001-@

6шт.

15

421-06-11221

HOLDER

SN: 50001-@

4шт.

16

113-06-31120

BOLT

SN: 50001-@

8шт.

17

01580-11008

NUT

SN: 50001-@

16шт.

18

01643-31032

WASHER

SN: 50001-@

8шт.

19

421-09-12322

HOLDER

SN: 50001-50013

4шт.

20

01023-60410

SCREW

SN: 50001-50013

8шт.

21

01023-60416

SCREW

SN: 50001-50013

12шт.

22

01641-20405

WASHER

SN: 50001-50013

16шт.

Выбрано товаров: 22