Запчасти Komatsu WA900-3 ПОЛ Э/ПРОВОДКА(№-) КАБИНА ОПЕРАТОРА И СИСТЕМА УПРАВЛЕНИЯ

Схема запчастей Komatsu WA900-3 - ПОЛ Э/ПРОВОДКА(№-) КАБИНА ОПЕРАТОРА И СИСТЕМА УПРАВЛЕНИЯ
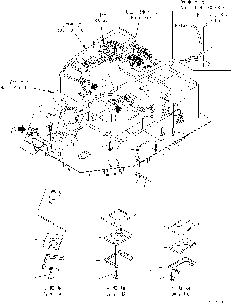
1
1
2
3
4
5
6
7
8
9
10
11
12
13
14
15
15
16
16
16
17
17
17
18
18
19
20
20
20
20
22
23
23
24
24
FIT
1:1
100%

Артикул

Название

Примечание

Количество

1

427-06-22113

WIRING HARNESS

SN: 50003-50024

1шт.

1

0

WIRING HARNESS

SN: 50001-50002

1шт.

2

421-06-22940

BRACKET

SN: 50001-50024

1шт.

3

01435-01016

BOLT

SN: 50001-50024

2шт.

4

421-06-22950

BRACKET

SN: 50001-50024

1шт.

5

01435-01016

BOLT

SN: 50001-50024

2шт.

6

426-06-22510

SHEET

SN: 50001-50024

1шт.

7

419-06-22530

PLATE

SN: 50001-50024

1шт.

8

01435-00610

BOLT

SN: 50001-50024

2шт.

9

421-06-22540

SHEET

SN: 50001-50024

1шт.

10

419-06-22530

PLATE

SN: 50001-50024

1шт.

11

01435-00610

BOLT

SN: 50001-50024

2шт.

12

425-06-22740

SHEET

SN: 50001-50024

1шт.

13

421-06-22731

PLATE

SN: 50013-50024

1шт.

13

0

PLATE

SN: 50001-50012

1шт.

14

01435-00610

BOLT

SN: 50001-50024

2шт.

15

04434-52712

CLIP

SN: 50001-50024

2шт.

16

04434-53412

CLIP

SN: 50001-50024

4шт.

17

08036-02514

CLIP

SN: 50001-50024

4шт.

18

281-01-13180

CLIP

SN: 50001-50024

1шт.

19

427-06-11180

CLAMP

SN: 50001-50024

1шт.

20

01435-01016

BOLT

SN: 50001-50024

12шт.

22

08028-12045

CABLE,EARTH

SN: 50001-50024

1шт.

23

01010-51016

BOLT

SN: 50001-50024

2шт.

24

01643-31032

WASHER

SN: 50001-50024

2шт.

Выбрано товаров: 25