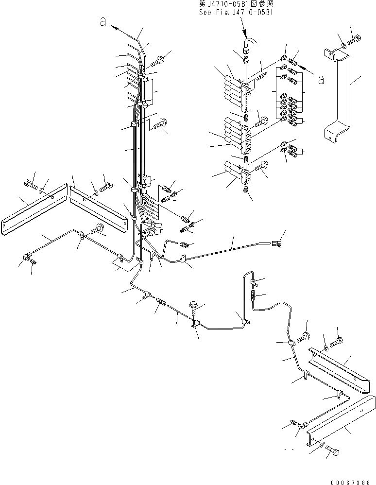
Запчасти Komatsu WA900-3E0 АВТОМАТИЧ. СМАЗ. (ПЕРЕДН. РАМА)(№-) ОСНОВНАЯ РАМА И ЕЕ ЧАСТИ

Схема запчастей Komatsu WA900-3E0 - АВТОМАТИЧ. СМАЗ. (ПЕРЕДН. РАМА)(№-) ОСНОВНАЯ РАМА И ЕЕ ЧАСТИ
1
1
2
2
3
4
4
5
6
7
8
8
8
8
9
10
10
11
12
13
14
15
16
17
18
19
19
20
20
21
21
22
23
24
25
26
27
28
28
29
29
29
29
29
29
29
30
30
31
31
32
33
34
34
35
35
36
36
37
37
37
37
37
37
37
37
37
37
37
37
38
38
38
39
39
40
40
41
41
41
41
42
42
42
42
43
44
45
FIT
1:1
100%

Артикул

Название

Примечание

Количество

1

581-96-19530

INJECTOR ASS'Y

SN: 60001-UP

2шт.

2

581-96-19620

CAP

SN: 60001-UP

10шт.

3

427-S95-1660

CONNECTOR

SN: 60001-UP

1шт.

4

581-96-19580

NIPPLE

SN: 60001-UP

2шт.

5

427-S95-3150

INJECTOR ASS'Y

SN: 60001-UP

1шт.

6

581-96-19620

CAP

SN: 60001-UP

2шт.

7

427-S95-2150

TUBE

SN: 60001-UP

2шт.

8

427-S95-2170

ELBOW

SN: 60001-UP

10шт.

9

581-96-19590

PLUG

SN: 60001-UP

1шт.

10

425-S95-2120

CONNECTOR

SN: 60001-UP

10шт.

11

01435-00845

BOLT

SN: 60001-UP

4шт.

12

01435-00845

BOLT

SN: 60001-UP

1шт.

13

427-S95-5390

TUBE

SN: 60001-UP

1шт.

14

427-S95-5450

TUBE

SN: 60001-UP

1шт.

15

427-S95-5410

TUBE

SN: 60001-UP

1шт.

16

427-S95-5420

TUBE

SN: 60001-UP

1шт.

17

427-S95-5430

TUBE

SN: 60001-UP

1шт.

18

427-S95-5440

TUBE

SN: 60001-UP

1шт.

19

425-S95-2120

CONNECTOR

SN: 60001-UP

2шт.

20

427-S95-2170

ELBOW

SN: 60001-UP

6шт.

21

203-70-56570

NIPPLE

SN: 60001-UP

6шт.

22

427-S95-5490

TUBE

SN: 60001-UP

1шт.

23

427-S95-5480

TUBE

SN: 60001-UP

1шт.

24

425-S95-2120

CONNECTOR

SN: 60001-UP

2шт.

25

561-95-63290

ELBOW

SN: 60001-UP

1шт.

26

427-S95-5461

TUBE

SN: 60001-UP

1шт.

27

427-S95-5471

TUBE

SN: 60001-UP

1шт.

28

425-S95-2120

CONNECTOR

SN: 60001-UP

3шт.

29

04435-50610

CLIP

SN: 60001-UP

12шт.

30

04434-50610

CLIP

SN: 60001-UP

2шт.

31

01435-01016

BOLT

SN: 60001-UP

9шт.

32

427-S95-5620

TUBE

SN: 60001-UP

1шт.

33

427-S95-5630

TUBE

SN: 60001-UP

1шт.

34

427-S95-2430

UNION

SN: 60001-UP

2шт.

35

561-95-63290

ELBOW

SN: 60001-UP

2шт.

36

423-70-11160

NIPPLE

SN: 60001-UP

2шт.

37

04434-50610

CLIP

SN: 60001-UP

15шт.

38

01435-01016

BOLT

SN: 60001-UP

11шт.

39

427-S95-5530

PLATE

SN: 60001-UP

2шт.

40

427-S95-5580

PLATE

SN: 60001-UP

2шт.

41

01010-81225

BOLT

SN: 60001-UP

8шт.

42

01643-31232

WASHER

SN: 60001-UP

8шт.

43

427-S95-5520

PLATE

SN: 60001-UP

1шт.

44

01010-81225

BOLT

SN: 60001-UP

2шт.

45

01643-31232

WASHER

SN: 60001-UP

2шт.

Выбрано товаров: 45