Запчасти Komatsu WA900-3E0 УПРАВЛ-Е ТОРМОЗОМ, QUICK FILL ТРУБЫ (№9-) УПРАВЛ-Е ТОРМОЗОМ

Схема запчастей Komatsu WA900-3E0 - УПРАВЛ-Е ТОРМОЗОМ, QUICK FILL ТРУБЫ (№9-) УПРАВЛ-Е ТОРМОЗОМ
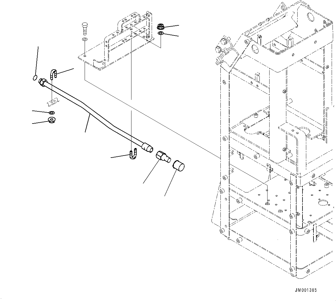
1
3
4
5
3
2
6
7
4
5
FIT
1:1
100%

Артикул

Название

Примечание

Количество

1

427-Z89-4691

Tube

SN: 60095-UP

1шт.

2

02896-21018

O-ring

SN: 60095-UP

1шт.

3

07283-32738

Clip, Pipe

SN: 60095-UP

2шт.

4

01597-01009

Nut

SN: 60095-UP

4шт.

5

01643-31232

Washer

SN: 60095-UP

4шт.

6

427-Z89-4310

Coupling

SN: 60095-UP

1шт.

7

427-Z89-4320

Cap

SN: 60095-UP

1шт.

Выбрано товаров: 7