Запчасти Komatsu WA900L-3 КРЕПЛЕНИЯ АККУМУЛЯТОРАING (КОРПУС И КРЕПЛЕНИЕ) (С ПРАВ. ЛЕСТНИЦА) ЭЛЕКТРИКА

Схема запчастей Komatsu WA900L-3 - КРЕПЛЕНИЯ АККУМУЛЯТОРАING (КОРПУС И КРЕПЛЕНИЕ) (С ПРАВ. ЛЕСТНИЦА) ЭЛЕКТРИКА
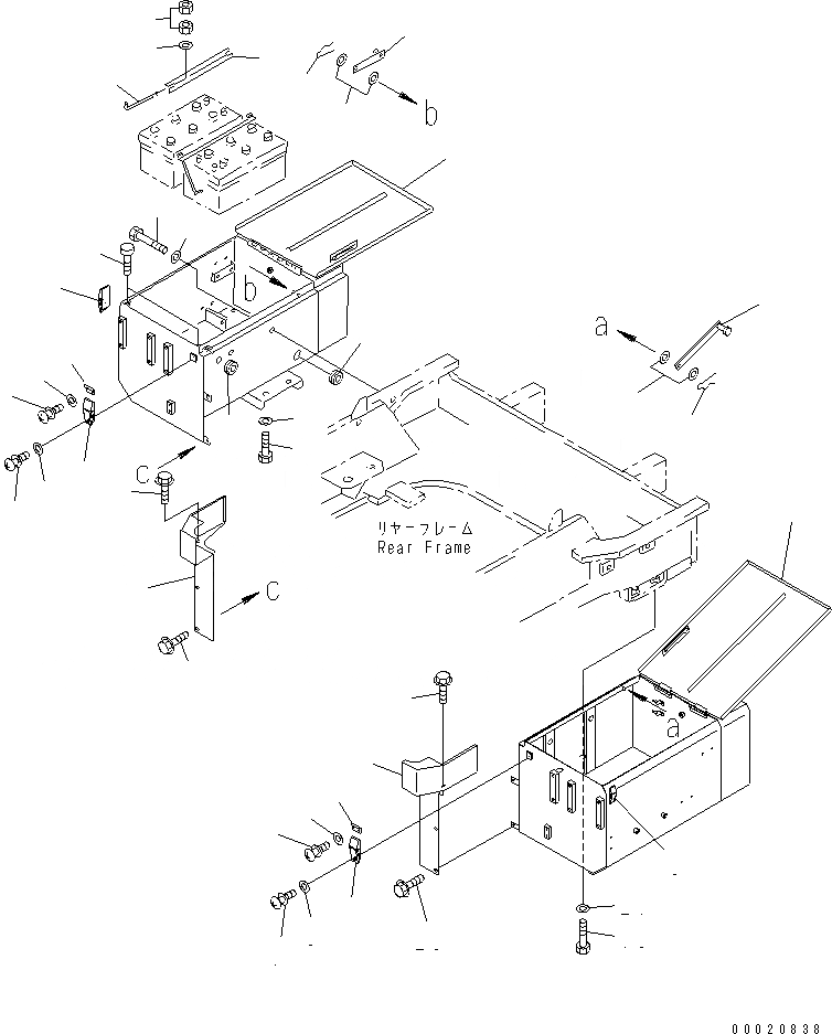
1
2
3
4
5
5
5
6
7
8
8
9
10
11
12
13
13
13
14
15
16
16
17
18
19
19
20
21
21
21
22
23
24
25
25
25
25
26
27
28
29
FIT
1:1
100%

Артикул

Название

Примечание

Количество

1

427-06-21040

BATTERY BOX ASS'Y,BATTERY, L.H.

SN: 52001-UP

1шт.

2

421-06-24230

BAR

SN: 52001-UP

1шт.

3

01640-20816

WASHER

SN: 52001-UP

2шт.

4

04052-10833

PIN,SNAP

SN: 52001-UP

1шт.

5

421-09-12322

HOLDER

SN: 52001-UP

2шт.

6

01023-60410

SCREW

SN: 52001-UP

4шт.

7

01023-60416

SCREW

SN: 52001-UP

6шт.

8

01640-20408

WASHER

SN: 52001-UP

10шт.

|$11

427-06-21060

BOX ASS'Y,BATTERY, R.H.

SN: 52001-UP

1шт.

9

427-06-24250

BOX,BATTERY, L.H.

SN: 52001-UP

1шт.

10

421-06-24230

BAR

SN: 52001-UP

1шт.

11

01640-20816

WASHER

SN: 52001-UP

2шт.

12

04052-10833

PIN,SNAP

SN: 52001-UP

1шт.

13

421-09-12322

HOLDER

SN: 52001-UP

2шт.

14

01023-60410

SCREW

SN: 52001-UP

4шт.

15

01023-60416

SCREW

SN: 52001-UP

6шт.

16

01640-20408

WASHER

SN: 52001-UP

10шт.

17

427-06-24312

COVER,L.H.

SN: 52001-UP

1шт.

18

427-06-24322

COVER,R.H.

SN: 52001-UP

1шт.

19

01010-62450

BOLT

SN: 52001-UP

4шт.

20

01010-62470

BOLT

SN: 52001-UP

4шт.

21

01643-32460

WASHER

SN: 52001-UP

8шт.

22

415-54-11980

CUSHION

SN: 52001-UP

4шт.

23

08037-05022

GROMMET

SN: 52001-UP

2шт.

24

421-06-12651

GROMMET

SN: 52001-UP

2шт.

25

01435-01220

BOLT

SN: 52001-UP

6шт.

26

421-06-11221

HOLDER

SN: 52001-UP

4шт.

27

113-06-31120

BOLT

SN: 52001-UP

8шт.

28

01580-11008

NUT

SN: 52001-UP

16шт.

29

01643-31032

WASHER

SN: 52001-UP

8шт.

Выбрано товаров: 30