Запчасти Komatsu WR11-3 КАБИНА (ЗАМОК ДВЕРИ ЛЕВ.) КАБИНА ОПЕРАТОРА И СИСТЕМА УПРАВЛЕНИЯ

Схема запчастей Komatsu WR11-3 - КАБИНА (ЗАМОК ДВЕРИ ЛЕВ.) КАБИНА ОПЕРАТОРА И СИСТЕМА УПРАВЛЕНИЯ
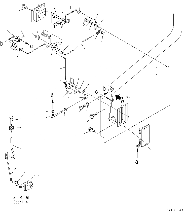
1
2
3
4
5
6
7
8
9
10
11
12
13
13
14
15
16
17
18
19
20
21
22
23
23
24
24
24
25
26
27
28
29
30
31
32
33
34
35
36
36
37
38
39
40
41
42
43
FIT
1:1
100%

Артикул

Название

Примечание

Количество

|1

416-56-21050

CAB ASS'Y

SN: 53101-UP

1шт.

|1

416-56-21030

CAB ASS'Y

SN: 53101-UP

1шт.

|$$3

THESE ASSEMBLIES CONSIST OF ALL PARTS SHOWN IN FIGS.K0210-01A0 TO K0210-17A0.

-1шт.

|1

417-56-21051

CAB ASS'Y

SN: 53001-53100

1шт.

|$$5

THIS ASSEMBLY CONSISTS OF ALL PARTS SHOWN IN FIGS.K0210-01A0 TO K0210-18A0.

-1шт.

|1

417-56-21400

DOOR ASS'Y

SN: 53101-UP

1шт.

|1

417-56-21202

DOOR ASS'Y,L.H.

SN: 53001-53100

1шт.

|$$8

THESE ASSEMBLIES CONSIST OF ALL PARTS SHOWN IN FIGS.K0210-11A0 TO K0210-13A0.

-1шт.

1

421-56-11720

LOCK

SN: 53001-UP

1шт.

2

01224-40616

SCREW

SN: 53001-UP

1шт.

3

421-54-16440

WASHER

SN: 53001-UP

1шт.

4

01435-00612

BOLT

SN: 53001-UP

2шт.

5

419-54-16880

KNOB

SN: 53001-UP

1шт.

6

08037-01008

GROMMET

SN: 53001-UP

1шт.

7

421-56-11581

ROD

SN: 53001-UP

1шт.

8

04052-10530

PIN

SN: 53001-UP

1шт.

9

417-56-21480

ROD

SN: 53001-UP

1шт.

10

421-56-11611

HOOK

SN: 53001-UP

1шт.

11

427-56-11790

LOCK ASS'Y

SN: 53001-UP

1шт.

12

417-56-21450

ROD

SN: 53001-UP

1шт.

13

421-56-11611

HOOK

SN: 53001-UP

2шт.

14

417-56-21251

LEVER,L.H.

SN: 53001-UP

1шт.

15

01641-20608

WASHER

SN: 53001-UP

2шт.

16

01580-10605

NUT

SN: 53001-UP

2шт.

17

04052-10530

PIN

SN: 53001-UP

1шт.

18

01641-20508

WASHER

SN: 53001-UP

1шт.

19

417-56-21361

ROD

SN: 53001-UP

1шт.

20

425-54-16450

SPRING

SN: 53001-UP

1шт.

21

425-54-16460

PIN

SN: 53001-UP

1шт.

22

417-56-21241

LEVER

SN: 53001-UP

1шт.

23

01641-20608

WASHER

SN: 53001-UP

2шт.

24

01580-10605

NUT

SN: 53001-UP

4шт.

25

01643-30623

WASHER

SN: 53001-UP

1шт.

26

04256-40615

JOINT

SN: 53001-UP

1шт.

27

417-56-21441

ROD

SN: 53001-UP

1шт.

28

417-56-21520

BUSHING

SN: 53001-UP

1шт.

29

417-56-21612

HANDLE,L.H.

SN: 53001-UP

1шт.

30

01023-60612

SCREW

SN: 53001-UP

2шт.

31

417-56-21460

ROD

SN: 53001-UP

1шт.

32

421-56-11611

HOOK

SN: 53001-UP

1шт.

33

425-54-16450

SPRING

SN: 53001-UP

1шт.

34

425-54-16460

PIN

SN: 53001-UP

1шт.

35

417-56-21470

LEVER,L.H.

SN: 53001-UP

1шт.

36

01641-20608

WASHER

SN: 53001-UP

2шт.

37

01580-10605

NUT

SN: 53001-UP

2шт.

38

42A-925-1620

ROD

SN: 53001-UP

1шт.

39

421-56-11611

HOOK

SN: 53001-UP

1шт.

40

421-56-11550

HANDLE

SN: 53001-UP

1шт.

41

01435-00612

BOLT

SN: 53001-UP

2шт.

42

421-56-11560

COVER

SN: 53001-UP

1шт.

43

421-56-11860

SCREW

SN: 53001-UP

1шт.

Выбрано товаров: 51