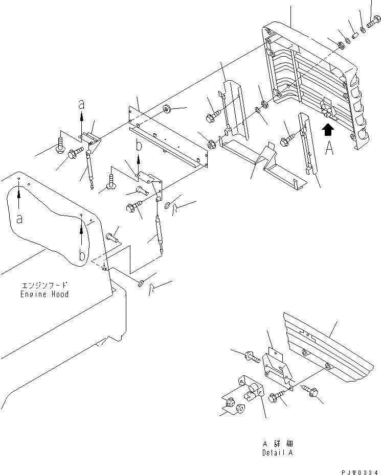
Запчасти Komatsu WR11-3 ЗАЩИТА РАДИАТОРА (РЕШЕТКА И COVER) (С СИГНАЛ. ЗАДНЕГО ХОДА)(№-) ЧАСТИ КОРПУСА

Схема запчастей Komatsu WR11-3 - ЗАЩИТА РАДИАТОРА (РЕШЕТКА И COVER) (С СИГНАЛ. ЗАДНЕГО ХОДА)(№-) ЧАСТИ КОРПУСА
1
1
2
3
4
4
5
6
7
8
8
9
10
11
12
13
14
15
16
17
18
18
19
19
20
21
21
22
22
23
23
24
25
26
26
27
27
FIT
1:1
100%

Артикул

Название

Примечание

Количество

1

418-54-21420

GRILLE ASS'Y

SN: 53001-53100

1шт.

2

417-54-21210

HINGE,L.H.

SN: 53001-53100

1шт.

3

417-54-21220

HINGE,R.H.

SN: 53001-53100

1шт.

4

01435-01225

BOLT

SN: 53001-53100

4шт.

5

417-54-21180

PLATE

SN: 53001-53100

1шт.

6

01435-00820

BOLT

SN: 53001-53100

3шт.

7

417-54-21561

LOCK ASS'Y

SN: 53001-53100

1шт.

8

01435-00816

BOLT

SN: 53001-53100

2шт.

9

01594-00807

NUT

SN: 53001-53100

2шт.

10

416-54-21640

COVER

SN: 53001-53100

1шт.

11

08037-02512

GROMMET

SN: 53001-53100

2шт.

12

418-54-21440

COVER,L.H.

SN: 53001-53100

1шт.

13

418-54-21430

COVER,R.H.

SN: 53001-53100

1шт.

14

417-54-21162

COVER

SN: 53001-53100

1шт.

15

01010-81255

BOLT

SN: 53001-53100

4шт.

16

01643-31232

WASHER

SN: 53001-53100

4шт.

17

419-43-17910

SPACER

SN: 53001-53100

4шт.

18

419-43-17920

WASHER

SN: 53001-53100

8шт.

19

419-43-17930

CUSHION

SN: 53001-53100

8шт.

20

01584-01210

NUT

SN: 53001-53100

4шт.

21

01435-00816

BOLT

SN: 53001-53100

4шт.

22

01435-01225

BOLT

SN: 53001-53100

4шт.

23

417-54-21330

GAS SPRING ASS'Y

SN: 53001-53100

2шт.

24

04205-10830

PIN

SN: 53001-53100

2шт.

25

04205-10825

PIN

SN: 53001-53100

2шт.

26

01641-20812

WASHER

SN: 53001-53100

4шт.

27

04052-10833

PIN,SNAP

SN: 53001-53100

4шт.

Выбрано товаров: 27