Запчасти Komatsu CMS253 КРЕПЛЕНИЕ ОСНОВ. (РАМА) ДЛЯ ДВОЙН. МАЧТА (SHIFT ТИП CLMAP ОСНОВ.)

Схема запчастей Komatsu CMS253 - КРЕПЛЕНИЕ ОСНОВ. (РАМА) ДЛЯ ДВОЙН. МАЧТА (SHIFT ТИП CLMAP ОСНОВ.)
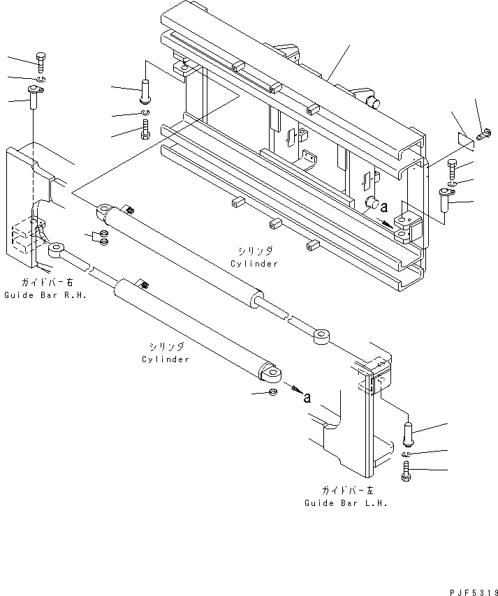
1
2
2
2
2
3
3
4
4
4
4
5
5
5
5
6
7
FIT
1:1
100%

Артикул

Название

Примечание

Количество

|$$1

OPENING RENGES ARE DISPLAYED AS FOLLOWS. =500-1900MM/=600-2000MM/=650-22 00MM

-1шт.

1

37B-Z2G-5020YD

FRAME,(CBS/CMS253)

SN: 1001-UP

1шт.

|$12

37B-Z1F-5021YD

FRAME,(CBS/CMS303)

SN: 1001-UP

1шт.

|$13

37B-Z2G-5010YD

FRAME,(CBS/CMS253)

SN: 1001-UP

1шт.

|$14

37B-Z1F-5011YD

FRAME,(CBS/CMS303)

SN: 1001-UP

1шт.

2

45B-2CB-7220SA

PIN

SN: 1001-UP

4шт.

3

45B-2CB-7250SA

COLLAR

SN: 1001-UP

3шт.

4

01010-81025

BOLT

SN: 1001-UP

4шт.

5

01602-21030

WASHER,SPRING

SN: 1001-UP

4шт.

6

0

NAME PLATE

SN: 1001-UP

1шт.

7

04418-13060

SCREW

SN: 1001-UP

4шт.

Выбрано товаров: 11