Запчасти Komatsu CMW359-1 КРЕПЛЕНИЕ ОСНОВ. (РАМА) КРЕПЛЕНИЕ ОСНОВ.(INDEPENDENT STROKE ТИП)(ДЛЯ TFV МАЧТА)

Схема запчастей Komatsu CMW359-1 - КРЕПЛЕНИЕ ОСНОВ. (РАМА) КРЕПЛЕНИЕ ОСНОВ.(INDEPENDENT STROKE ТИП)(ДЛЯ TFV МАЧТА)
1
2
2
2
2
3
3
3
3
4
5
FIT
1:1
100%

Артикул

Название

Примечание

Количество

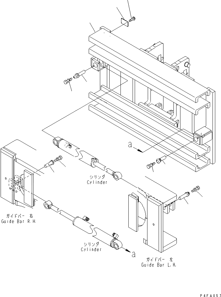
1

37C-ZX9-4020UE

FRAME,(CBW/CMW359)

SN: 1001-UP

1шт.

|$11

37C-ZX9-4010UE

FRAME,(CBW/CMW409)

SN: 1001-UP

1шт.

2

3EB-41-31860

PIN

SN: 1001-UP

4шт.

3

01024-81030

BOLT

SN: 1001-UP

4шт.

4

0

PLATE, NAME

SN: 1001-UP

1шт.

5

04418-13060

SCREW

SN: 1001-UP

4шт.

Выбрано товаров: 0