Запчасти Komatsu FSH409-1 БОКОВ. СДВИГER (РАМА) (РОЛИК ТИП) (ШИР.=8MM)(№-) БОКОВ. СДВИГER (ДЛЯ FV МАЧТА) (КРЮК ТИП/РОЛИК ТИП)

Схема запчастей Komatsu FSH409-1 - БОКОВ. СДВИГER (РАМА) (РОЛИК ТИП) (ШИР.=8MM)(№-) БОКОВ. СДВИГER (ДЛЯ FV МАЧТА) (КРЮК ТИП/РОЛИК ТИП)
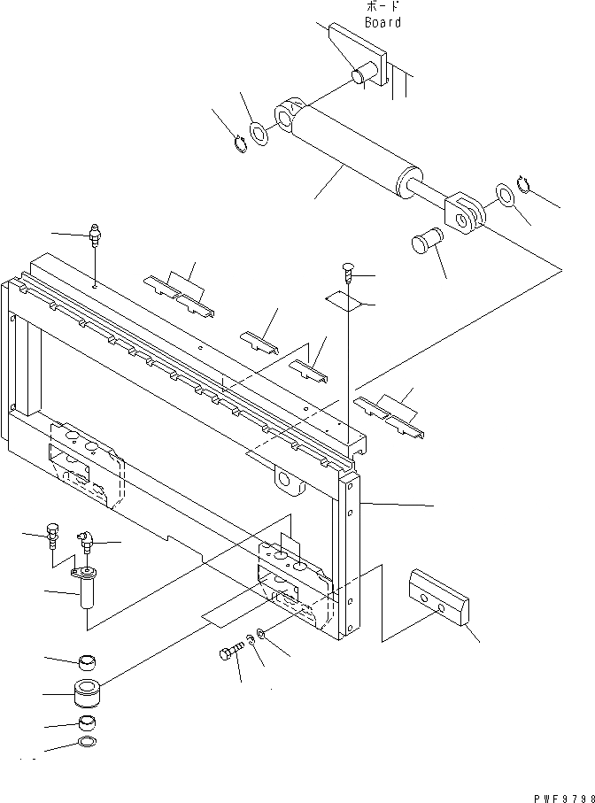
1
2
3
4
5
6
6
6
6
7
8
9
10
10
11
11
12
13
14
15
15
16
17
18
19
FIT
1:1
100%

Артикул

Название

Примечание

Количество

1

37C-ZW6-4030SG

SHIFT FRAME

SN: 0001-UP

1шт.

2

45C-AFS-1240SG

PLATE

SN: 0001-UP

2шт.

3

01010-82055

BOLT

SN: 0001-UP

4шт.

4

01602-22060

WASHER,SPRING

SN: 0001-UP

4шт.

5

01643-32060

WASHER

SN: 0001-UP

4шт.

6

45C-AFS-1210

STRIP

SN: 0001-UP

6шт.

7

07020-00000

FITTING,GREASE

SN: 0001-UP

3шт.

8

07020-00675

FITTING,GREASE

SN: 0001-UP

4шт.

9

45C-AFS-1250

PIN

SN: 0001-UP

1шт.

10

37A-749-2040

SHIM, 2.3MM

SN: 0001-UP

2шт.

11

04064-03515

RING,COTTER

SN: 0001-UP

2шт.

12

45C-AFS-1660SG

PIN

SN: 0001-UP

4шт.

13

01024-80820

BOLT

SN: 0001-UP

4шт.

14

45C-AFS-1610

ROLLER

SN: 0001-UP

4шт.

15

45C-1FS-1180

BUSHING

SN: 0001-UP

8шт.

16

308-44-25410

WASHER

SN: 0001-UP

4шт.

17

0

PLATE, NAME

SN: 0001-UP

1шт.

18

04418-13060

SCREW

SN: 0001-UP

4шт.

19

37C-ZAU-3010UE

CYLINDER ASS'Y

SN: 0001-UP

1шт.

Выбрано товаров: 19