Запчасти Komatsu FSH159 БОКОВ. СДВИГER (ВНУТР. ЧАСТИ) (РАМА) БОКОВ. СДВИГER ВНУТР. ЧАСТИ (ВСЕ ТИПЫ МАЧТА) (FSH9/89)

Схема запчастей Komatsu FSH159 - БОКОВ. СДВИГER (ВНУТР. ЧАСТИ) (РАМА) БОКОВ. СДВИГER ВНУТР. ЧАСТИ (ВСЕ ТИПЫ МАЧТА) (FSH9/89)
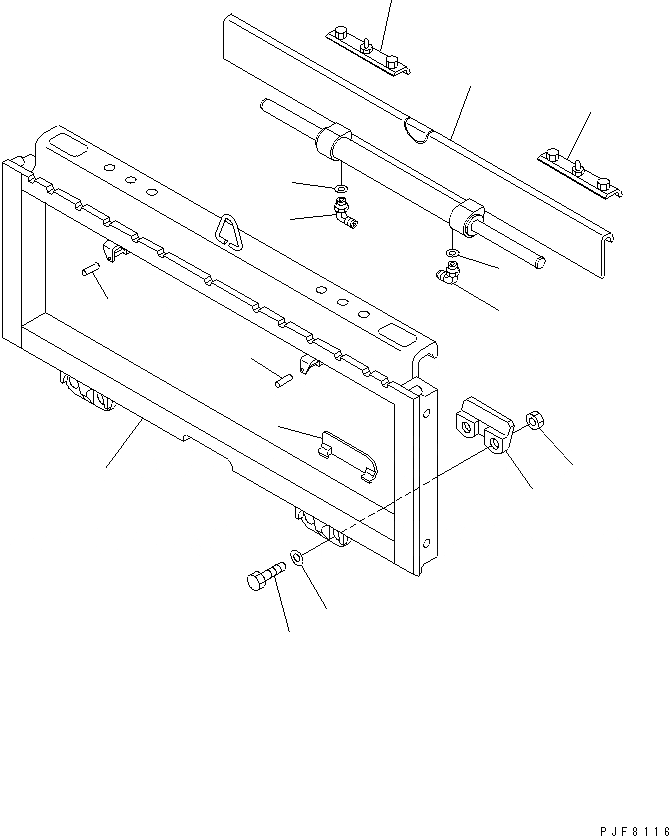
1
1
2
3
4
5
6
7
8
9
9
10
10
11
11
FIT
1:1
100%

Артикул

Название

Примечание

Количество

|$4

45A-1BS-6010

SIDE SHIFTER ASS'Y

SN: 1001-UP

1шт.

|$$2

THIS ASSEMBLY CONSISTS OF ALL PARTS SHOWN IN FIGS.T4010-31A1 AND T4010-32A1.

-1шт.

1

CC228782

BEARING,UPPER

SN: 1001-UP

-2шт.

2

CC6026211

CYLINDER ASS'Y,SIDE SHIFT

SN: 1001-UP

1шт.

3

CC6000719

BEARING,LOWER

SN: 1001-UP

-2шт.

4

CC553857

NUT

SN: 1001-UP

4шт.

5

CC204186

LOWER HOOK

SN: 1001-UP

2шт.

6

CC667225

WASHER

SN: 1001-UP

4шт.

7

CC639121

BOLT

SN: 1001-UP

4шт.

8

0

FRAME

SN: 1001-UP

1шт.

9

CC221733

FLOW RESTICTOR

SN: 1001-UP

2шт.

10

CC7890

PIN

SN: 1001-UP

2шт.

11

CC531243

ELBOW

SN: 1001-UP

2шт.

Выбрано товаров: 13