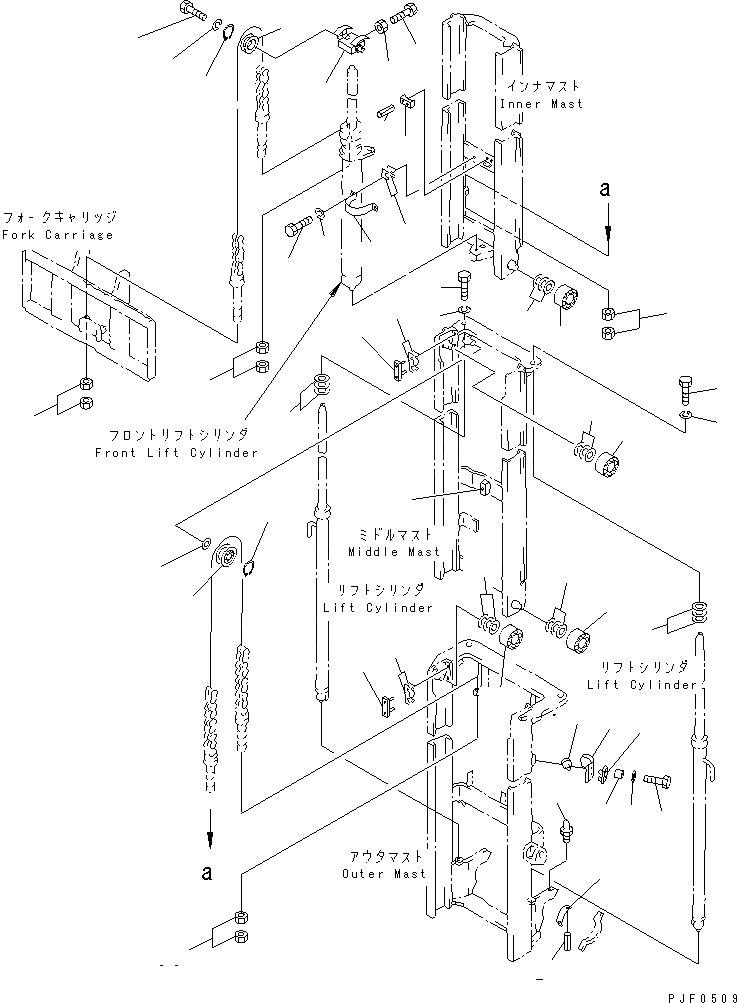
Запчасти Komatsu FD15-17 ДЛЯ TFV МАЧТА ATTACHING ЧАСТИ(№-999) МАЧТА И СТРЕЛА

Схема запчастей Komatsu FD15-17 - ДЛЯ TFV МАЧТА ATTACHING ЧАСТИ(№-999) МАЧТА И СТРЕЛА
1
2
3
4
5
6
7
8
9
10
11
12
13
14
15
16
17
17
18
18
19
19
20
21
22
23
24
24
25
26
27
28
29
30
31
32
33
34
35
36
37
38
39
39
40
41
42
43
FIT
1:1
100%

Артикул

Название

Примечание

Количество

1

3EA-71-31290

BUSHING

SN: 630001-@

2шт.

2

04025-00816

PIN,SPRING

SN: 630001-@

4шт.

3

07020-00001

FITTING,GREASE

SN: 630001-@

2шт.

4

01010-81025

BOLT

SN: 630001-@

4шт.

5

01643-31032

WASHER

SN: 630001-@

4шт.

6

3EA-71-31410

CLAMP

SN: 630001-@

2шт.

7

3EB-M1-31430

RUBBER

SN: 630001-@

2шт.

8

3EB-71-31510

PLATE

SN: 630001-@

2шт.

9

3EB-71-31460

PIPE

SN: 630001-@

4шт.

10

37A-9AA-2110

ROLLER,NS

SN: 630001-@

2шт.

|$19

37A-9AA-2120

ROLLER,NM

SN: 630001-@

2шт.

11

34A-72-00010

SHIM ASS'Y

SN: 630001-@

2шт.

|$21

0

SHIM, 0.5MM

SN: 630001-@

-2шт.

|$22

0

SHIM, 1.0MM

SN: 630001-@

-2шт.

|$23

0

SHIM, 2.3MM

SN: 630001-@

-2шт.

12

3EB-71-31640

STRIP

SN: 630001-@

2шт.

13

3EB-71-00090

SHIM ASS'Y

SN: 630001-@

2шт.

|$26

0

SHIM, 1.0MM

SN: 630001-@

-2шт.

|$27

0

SHIM, 0.5MM

SN: 630001-@

-2шт.

14

34A-72-11150

WHEEL

SN: 630001-@

2шт.

15

37A-749-3030

SHIM, 1.0MM

SN: 630001-@

2шт.

16

04064-03015

RING,SNAP

SN: 630001-@

2шт.

17

3EA-71-00020

SHIM ASS'Y

SN: 630001-@

1шт.

|$32

0

SHIM, 2.0MM

SN: 630001-@

-2шт.

|$33

0

SHIM, 1.0MM

SN: 630001-@

-2шт.

|$34

0

SHIM, 0.5MM

SN: 630001-@

-2шт.

18

01010-81230

BOLT

SN: 630001-@

2шт.

19

01602-21236

WASHER,SPRING

SN: 630001-@

2шт.

20

37A-9AA-2210

ROLLER,NS

SN: 630001-@

2шт.

|$38

37A-9AA-2220

ROLLER,NM

SN: 630001-@

2шт.

|$39

37A-9AA-2240

ROLLER,NLL

SN: 630001-@

1шт.

|$40

37A-9AA-2230

ROLLER,NL

SN: 630001-@

1шт.

21

34A-72-00010

SHIM ASS'Y

SN: 630001-@

2шт.

|$42

0

SHIM, 0.5MM

SN: 630001-@

-2шт.

|$43

0

SHIM, 1.0MM

SN: 630001-@

-2шт.

|$44

0

SHIM, 2.3MM

SN: 630001-@

-2шт.

22

37A-9AA-2110

ROLLER,NS

SN: 630001-@

2шт.

|$46

37A-9AA-2120

ROLLER,NM

SN: 630001-@

2шт.

23

34A-72-00010

SHIM ASS'Y

SN: 630001-@

2шт.

|$48

0

SHIM, 0.5MM

SN: 630001-@

-2шт.

|$49

0

SHIM, 1.0MM

SN: 630001-@

-2шт.

|$50

0

SHIM, 2.3MM

SN: 630001-@

-2шт.

24

01582-11411

NUT

SN: 630001-@

8шт.

25

3EB-71-31640

STRIP

SN: 630001-@

2шт.

26

3EB-71-00090

SHIM ASS'Y

SN: 630001-@

2шт.

|$54

0

SHIM, 1.0MM

SN: 630001-@

-2шт.

|$55

0

SHIM, 0.5MM

SN: 630001-@

-2шт.

27

34A-76-25750

RUBBER

SN: 630001-@

2шт.

28

01010-81235

BOLT

SN: 630001-@

2шт.

29

01602-21236

WASHER,SPRING

SN: 630001-@

2шт.

30

34B-02-00010

SHIM ASS'Y

SN: 630001-631999

1шт.

|$60

0

SHIM, 0.5MM

SN: 630001-631999

-2шт.

|$61

0

SHIM, 1.0MM

SN: 630001-631999

-2шт.

31

3EA-T1-31170

CLAMP

SN: 630001-631999

1шт.

32

3EA-T1-31190

HEAD

SN: 630001-@

1шт.

33

01016-81030

BOLT

SN: 630001-@

1шт.

34

01580-11008

NUT

SN: 630001-@

1шт.

35

34A-72-11150

WHEEL

SN: 630001-@

2шт.

36

04064-03015

RING,SNAP

SN: 630001-@

2шт.

37

37A-9AA-2110

ROLLER,NS

SN: 630001-@

2шт.

|$71

37A-9AA-2120

ROLLER,NM

SN: 630001-@

2шт.

|$72

37A-9AA-2140

ROLLER,NLL

SN: 630001-@

1шт.

|$73

37A-9AA-2130

ROLLER,L

SN: 630001-@

1шт.

38

3EA-72-00010

SHIM ASS'Y

SN: 630001-@

2шт.

|$75

0

SHIM, 0.5MM

SN: 630001-@

-2шт.

|$76

0

SHIM, 1.0MM

SN: 630001-@

-2шт.

|$77

0

SHIM, 2.3MM

SN: 630001-@

-2шт.

39

01582-11411

NUT

SN: 630001-@

8шт.

40

3EA-T1-31180

RUBBER

SN: 630001-631999

1шт.

41

04025-00824

PIN,SPRING

SN: 630001-631999

2шт.

42

01010-81220

BOLT

SN: 630001-@

2шт.

43

01602-21236

WASHER,SPRING

SN: 630001-@

2шт.

Выбрано товаров: 72