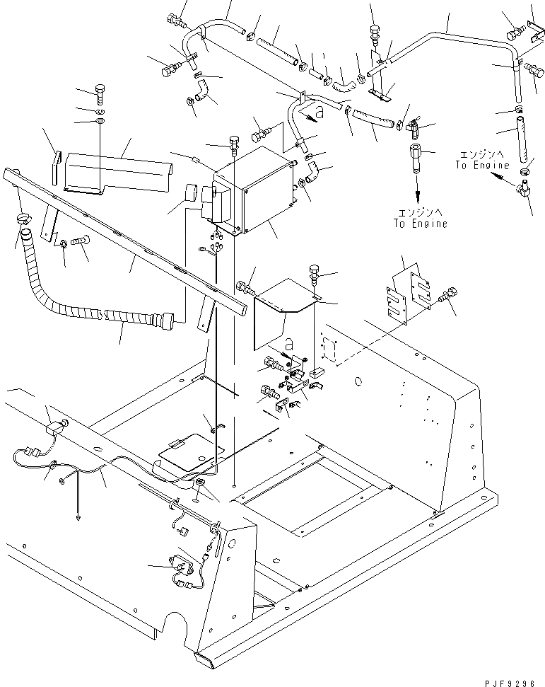
Запчасти Komatsu FD150E-8 ОБОГРЕВАТЕЛЬ. (АНТИОБЛЕДЕНИТЕЛЬ) (ДЛЯ СТАЛЬНАЯ КАБИНАIN)(№7-7) ОПЦИОННЫЕ КОМПОНЕНТЫ

Схема запчастей Komatsu FD150E-8 - ОБОГРЕВАТЕЛЬ. (АНТИОБЛЕДЕНИТЕЛЬ) (ДЛЯ СТАЛЬНАЯ КАБИНАIN)(№7-7) ОПЦИОННЫЕ КОМПОНЕНТЫ
1
2
3
4
4
5
6
6
7
7
7
7
8
9
10
11
12
13
14
14
15
16
17
17
18
19
20
20
21
22
23
24
25
26
26
26
26
26
26
27
27
27
27
27
27
27
28
29
30
31
32
32
33
34
35
36
37
38
39
40
41
42
43
44
45
46
47
48
49
FIT
1:1
100%

Артикул

Название

Примечание

Количество

1

3FE-94-41190

NIPPLE

SN: 7001-@

1шт.

2

09482-10000

VALVE

SN: 7001-@

1шт.

3

09483-10502

HOSE

SN: 7001-@

1шт.

4

07281-00289

CLAMP

SN: 7001-@

2шт.

5

3FE-94-45131

PIPE

SN: 7073-@

1шт.

|$6

3FE-94-45130

PIPE

SN: 7001-7072

1шт.

6

09483-30550

HOSE

SN: 7001-@

2шт.

7

07281-00289

CLAMP

SN: 7001-@

4шт.

|$9

3FE-94-35130

HEATER ASS'Y

SN: 7001-@

1шт.

8

45E-943-1520

HEATER

SN: 7001-@

1шт.

9

45E-943-1530

SWITCH

SN: 7001-@

1шт.

10

01024-81020

BOLT

SN: 7001-@

4шт.

11

3EB-94-32620

CAP

SN: 7001-@

1шт.

12

3FE-94-45121

PIPE

SN: 7073-@

1шт.

|$15

3FE-94-45120

PIPE

SN: 7001-7072

1шт.

13

09483-10502

HOSE

SN: 7001-@

1шт.

14

07281-00289

CLAMP

SN: 7001-@

2шт.

15

09484-00560

CONNECTOR

SN: 7001-@

1шт.

16

09483-30550

HOSE

SN: 7001-@

1шт.

17

07281-00289

CLAMP

SN: 7001-@

2шт.

18

3FE-94-45111

PIPE

SN: 7073-@

1шт.

|$22

3FE-94-45110

PIPE

SN: 7001-7072

1шт.

19

09483-10502

HOSE

SN: 7001-7500

1шт.

20

07281-00289

CLAMP

SN: 7001-@

2шт.

21

3FE-94-45170

ELBOW

SN: 7001-@

1шт.

22

3FE-94-41230SG

BRACKET

SN: 7001-7500

1шт.

23

3FE-94-45140SG

BRACKET

SN: 7001-@

1шт.

24

3FE-94-45150SG

BRACKET

SN: 7001-@

1шт.

25

3FE-94-41220SG

BRACKET

SN: 7001-7500

1шт.

26

04434-51608

CLIP

SN: 7073-@

6шт.

|$35

04434-51808

CLIP

SN: 7001-7072

6шт.

27

01024-80816

BOLT

SN: 7001-7500

8шт.

28

01024-80820

BOLT

SN: 7001-@

1шт.

29

3FE-94-45260

PLATE

SN: 7073-@

1шт.

|$39

3FE-94-45160

RUBBER

SN: 7001-7072

2шт.

30

01024-80816

BOLT

SN: 7073-@

5шт.

|$41

01024-80620

BOLT

SN: 7001-7072

6шт.

31

3FE-94-45181XC

COVER

SN: 7073-@

1шт.

|$43

3FE-94-45180XC

COVER

SN: 7001-7072

1шт.

32

01024-80816

BOLT

SN: 7001-@

2шт.

33

3FE-94-45190

HARNESS

SN: 7001-@

1шт.

34

3FE-94-35140

PLATE, NAME

SN: 7001-@

1шт.

35

09415-01610

CAP

SN: 7001-@

1шт.

36

37E-1EJ-3020

FUSE, 15A

SN: 7006-@

1шт.

|$51

37E-1EJ-3010

FUSE, 10A

SN: 7001-7005

1шт.

37

3FE-55-44520

HARNESS

SN: 7001-@

1шт.

38

37B-1AE-6010

BAND

SN: 7001-@

10шт.

39

3FE-94-45230XC

COVER

SN: 7001-@

1шт.

40

01010-80812

BOLT

SN: 7001-7500

2шт.

41

01643-30823

WASHER

SN: 7001-7500

2шт.

42

01602-20825

WASHER,SPRING

SN: 7001-@

2шт.

43

3FE-94-45321

HOSE

SN: 7105-@

1шт.

|$60

3FE-94-45320

HOSE

SN: 7001-7104

1шт.

44

07281-00489

CLAMP

SN: 7001-@

1шт.

45

3FE-52-13110

DEFROSTER

SN: 7001-@

1шт.

46

3FE-52-13120

WASHER

SN: 7001-7072

2шт.

47

01024-80816

BOLT

SN: 7073-@

2шт.

|$65

01224-40612

SCREW

SN: 7001-7072

2шт.

48

3SB-04-24150

GROMMET

SN: 7001-@

1шт.

49

3EA-50-33821

RUBBER

SN: 7001-@

1шт.

Выбрано товаров: 60