Запчасти Komatsu FD135-6 ВЕРХН. ЗАЩИТА ЧАСТИ КОРПУСА И КАБИНА ОПЕРАТОРА

Схема запчастей Komatsu FD135-6 - ВЕРХН. ЗАЩИТА ЧАСТИ КОРПУСА И КАБИНА ОПЕРАТОРА
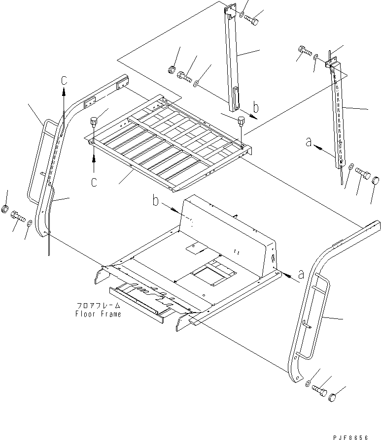
1
2
3
4
5
6
6
7
7
8
8
8
8
9
9
9
9
10
10
10
10
11
11
12
12
FIT
1:1
100%

Артикул

Название

Примечание

Количество

1

3FE-51-11111YD

GUARD,HEAD

SN: 5001-UP

1шт.

2

3FE-51-11121YD

STAY,L.H.

SN: 5001-UP

1шт.

3

3FE-51-11131YD

STAY,R.H.

SN: 5001-UP

1шт.

4

3FE-51-11141YD

STAY,L.H. REAR

SN: 5001-UP

1шт.

5

3FE-51-11151YD

STAY,R.H. REAR

SN: 5001-UP

1шт.

6

01010-81225

BOLT

SN: 5001-UP

12шт.

7

01643-31232

WASHER,SPRING

SN: 5001-UP

12шт.

8

01010-81045

BOLT

SN: 5001-UP

8шт.

9

01602-21030

WASHER,SPRING

SN: 5001-UP

8шт.

10

09415-02512

CAP

SN: 5001-UP

8шт.

11

37B-1CN-2060

HOSE

SN: 5001-UP

2шт.

12

3EB-51-31380

PIPE

SN: 5001-UP

2шт.

Выбрано товаров: 12