Запчасти Komatsu FD100-8 4-Х СЕКЦИОНН. УПРАВЛЯЮЩ. КЛАПАН РЫЧАГ ГИДРАВЛИКА

Схема запчастей Komatsu FD100-8 - 4-Х СЕКЦИОНН. УПРАВЛЯЮЩ. КЛАПАН РЫЧАГ ГИДРАВЛИКА
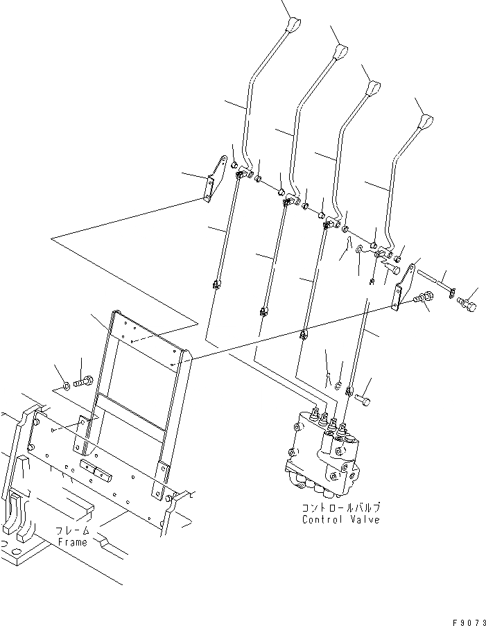
1
2
3
4
5
6
6
7
8
9
9
10
11
12
12
13
14
15
15
16
17
18
18
19
20
20
20
20
21
22
23
24
25
26
FIT
1:1
100%

Артикул

Название

Примечание

Количество

1

3FE-61-33510SG

BRACKET

SN: 7001-UP

1шт.

2

01010-81225

BOLT

SN: 7001-UP

4шт.

3

01643-31232

WASHER

SN: 7001-UP

4шт.

4

3FE-61-43110UA

LEVER,LIFT

SN: 7001-UP

1шт.

5

3EB-61-41170

KNOB

SN: 7001-UP

1шт.

6

3MA-73-13180

BUSHING

SN: 7001-UP

2шт.

7

3FE-61-43120UA

LEVER,TILT

SN: 7001-UP

1шт.

8

3EB-61-41180

KNOB

SN: 7001-UP

1шт.

9

3MA-73-13180

BUSHING

SN: 7001-UP

2шт.

10

3FE-61-43130UA

LEVER

SN: 7001-UP

1шт.

11

3EB-61-41190

KNOB

SN: 7001-UP

1шт.

12

3MA-73-13180

BUSHING

SN: 7001-UP

2шт.

13

3FE-61-43140UA

LEVER

SN: 7001-UP

1шт.

14

3EB-61-41190

KNOB

SN: 7001-UP

1шт.

15

3MA-73-13180

BUSHING

SN: 7001-UP

2шт.

16

3EC-61-12520

SHAFT

SN: 7001-UP

1шт.

17

01024-80610

BOLT

SN: 7001-UP

1шт.

18

3FE-61-13320SG

BRACKET

SN: 7001-UP

2шт.

19

01024-80816

BOLT

SN: 7001-UP

4шт.

20

3FE-61-33520

LINK

SN: 7001-UP

4шт.

21

04205-11025

PIN

SN: 7001-UP

4шт.

22

01641-21016

WASHER

SN: 7001-UP

4шт.

23

04050-13020

PIN,COTTER

SN: 7001-UP

4шт.

24

04205-10825

PIN

SN: 7001-UP

4шт.

25

01641-20812

WASHER

SN: 7001-UP

4шт.

26

04050-12015

PIN,COTTER

SN: 7001-UP

4шт.

Выбрано товаров: 26