Запчасти Komatsu MRTL07-10 АККУМУЛЯТОР BED(№-7) ЭЛЕКТРИКА

Схема запчастей Komatsu MRTL07-10 - АККУМУЛЯТОР BED(№-7) ЭЛЕКТРИКА
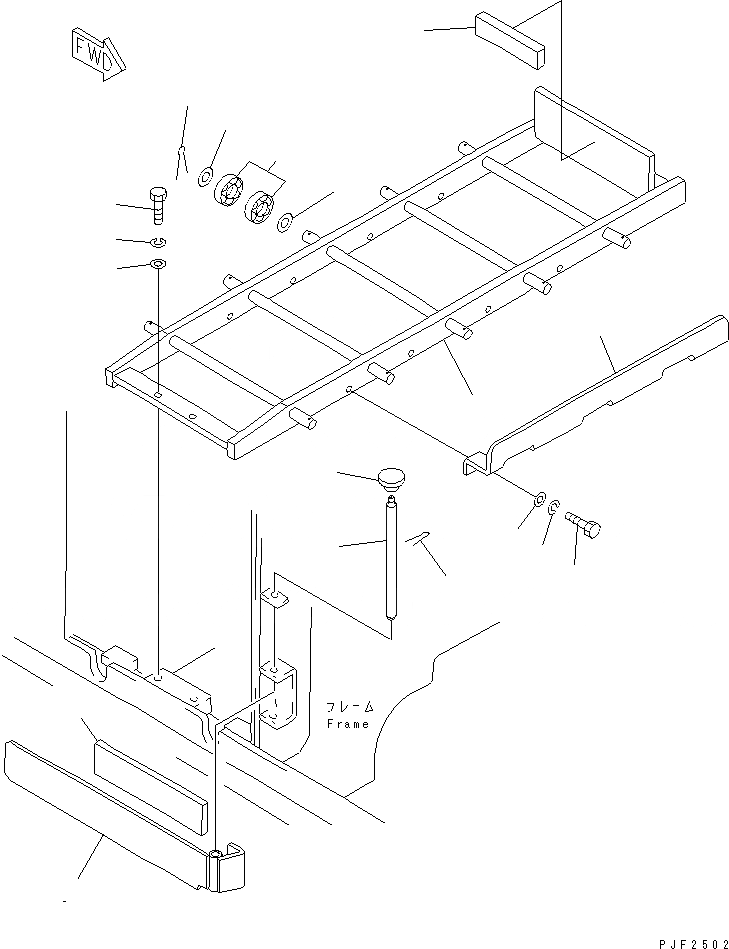
1
2
3
3
4
5
6
7
8
9
10
11
12
13
14
15
16
17
FIT
1:1
100%

Артикул

Название

Примечание

Количество

1

3RA-59-55610YD

BED

SN: 60001-@

1шт.

2

06002-06004

BEARING

SN: 60001-@

20шт.

3

3RA-59-53750

PLATE

SN: 60001-@

20шт.

4

04050-14035

PIN,COTTER

SN: 60001-@

10шт.

5

01010-51030

BOLT

SN: 60001-70000

4шт.

6

01602-21030

WASHER,SPRING

SN: 60001-@

4шт.

7

01640-21016

WASHER

SN: 60001-@

4шт.

8

3RA-59-51260

RUBBER

SN: 60001-70000

1шт.

9

3RA-45-66350

LEVER

SN: 60001-70000

1шт.

10

3RA-44-76240

LEVER

SN: 60001-70000

1шт.

11

04050-12020

PIN,COTTER

SN: 60001-70000

1шт.

12

3RB-50-51540

KNOB

SN: 60001-70000

1шт.

13

34A-52-15270

RUBBER

SN: 60001-70000

2шт.

14

3RA-59-51322YD

PLATE

SN: 60001-@

1шт.

15

01010-51030

BOLT

SN: 60001-70000

4шт.

16

01602-21030

WASHER,SPRING

SN: 60001-@

4шт.

17

01640-21016

WASHER

SN: 60001-@

4шт.

Выбрано товаров: 17