Запчасти Komatsu D155C-1P ПОДВЕСКА(№8-) ОСНОВН. РАМА И КОМПОНЕНТЫ

Схема запчастей Komatsu D155C-1P - ПОДВЕСКА(№8-) ОСНОВН. РАМА И КОМПОНЕНТЫ
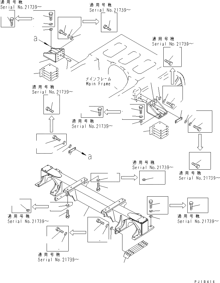
1
2
3
3
4
5
5
6
6
7
8
9
9
10
10
10
10
11
11
12
12
13
13
14
14
14
14
15
15
16
16
17
17
18
18
18
18
19
19
20
20
21
21
21
21
22
22
23
23
FIT
1:1
100%

Артикул

Название

Примечание

Количество

1

176-50-41112

BAR

SN: 15686-31642

1шт.

2

176-50-11130

SHIM, 0.5MM

SN: 15686-@

28шт.

3

01018-32490

BOLT

SN: 21739-@

8шт.

3

0

BOLT

SN: 15686-21738

8шт.

4

176-50-41120

WASHER

SN: 15686-@

8шт.

5

01643-32460

WASHER

SN: 21739-@

8шт.

5

0

WASHER,SPRING

SN: 15686-21738

8шт.

6

01018-32490

BOLT

SN: 21739-@

16шт.

6

0

BOLT

SN: 15686-21738

16шт.

7

01602-02472

WASHER,SPRING

SN: 15686-21738

16шт.

8

01643-32460

WASHER

SN: 15686-@

16шт.

9

01019-32450

BOLT

SN: 15686-@

8шт.

10

01643-32460

WASHER

SN: 21739-@

8шт.

10

0

WASHER,SPRING

SN: 15686-21738

8шт.

11

176-50-11140

BRACKET

SN: 15686-@

2шт.

12

176-50-11150

PIN

SN: 15686-@

2шт.

13

176-50-11160

SHIM, 0.5MM

SN: 15686-@

28шт.

14

01018-32470

BOLT

SN: 21739-@

8шт.

14

01018-02480

BOLT

SN: 15686-21738

8шт.

15

01602-02472

WASHER,SPRING

SN: 15686-21738

8шт.

16

01643-32460

WASHER

SN: 15686-@

8шт.

17

176-50-11180

PLATE

SN: 15686-@

2шт.

18

01010-82450

BOLT

SN: 31574-@

4шт.

18

01010-82445

BOLT

SN: 21739-31573

4шт.

18

01010-32450

BOLT

SN: 15686-21738

4шт.

19

01602-02472

WASHER,SPRING

SN: 15686-21738

4шт.

20

01643-32460

WASHER

SN: 15686-@

4шт.

21

01018-32470

BOLT

SN: 21739-@

8шт.

21

01018-02480

BOLT

SN: 15686-21738

8шт.

22

01602-02472

WASHER,SPRING

SN: 15686-21738

8шт.

23

01643-32460

WASHER

SN: 15686-@

8шт.

Выбрано товаров: 31