Запчасти Komatsu D155C-1P КАПОТ И ЧАСТИ КОРПУСА (ЗАЩИТА РАДИАТОРА)(№8-7) ЧАСТИ КОРПУСА

Схема запчастей Komatsu D155C-1P - КАПОТ И ЧАСТИ КОРПУСА (ЗАЩИТА РАДИАТОРА)(№8-7) ЧАСТИ КОРПУСА
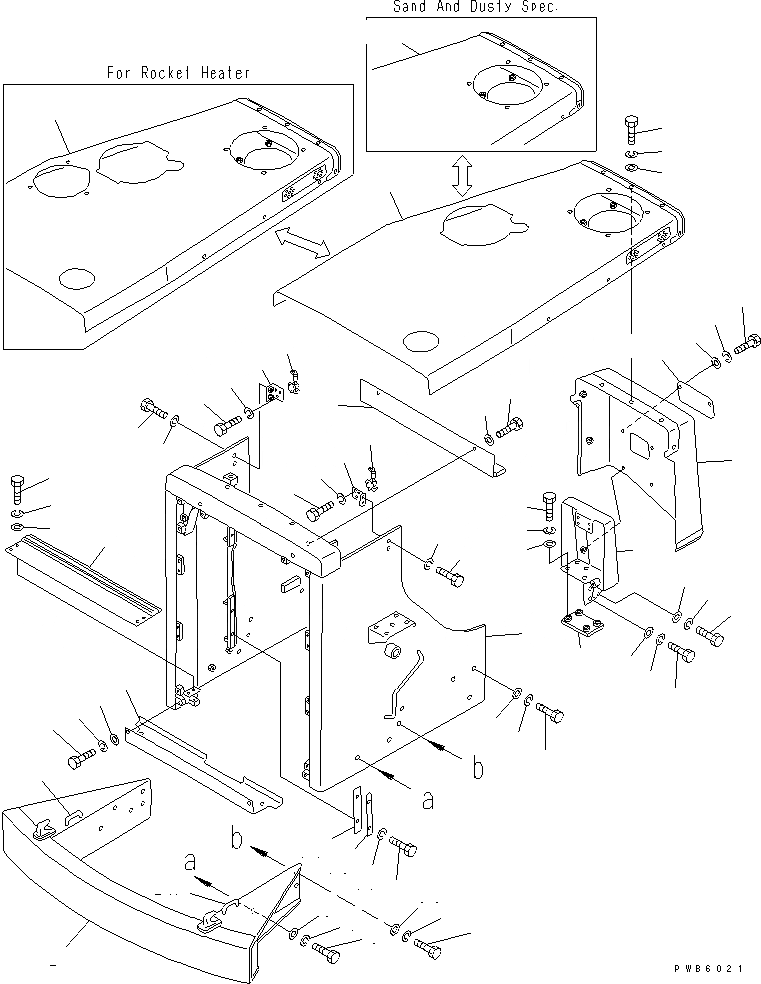
1
2
2A
2A
3
4
5
6
7
8
9
10
11
12
13
14
15
16
17
18
19
20
21
22
23
24
24
24
25
25
26
27
27
28
28
29
30
31
31
32
32
33
33
34
35
36
37
38
39
40
41
42
43
44
45
46
47
48
49
50
51
52
FIT
1:1
100%

Артикул

Название

Примечание

Количество

1

176-54-41113

GUARD

SN: 15686-@

1шт.

2

176-54-43112

BUMPER

SN: 15686-31573

1шт.

2A

175-871-2120

HOOK (WELDED)

SN: 15686-31573

2шт.

3

01010-82050

BOLT

SN: 15686-31573

4шт.

4

01602-02060

WASHER

SN: 15686-21738

4шт.

5

01643-32045

WASHER

SN: 15686-31573

4шт.

6

176-54-41440

GUARD

SN: 15686-31415

1шт.

7

01010-81250

BOLT

SN: 15686-31573

4шт.

8

01602-01236

WASHER

SN: 15686-21738

4шт.

9

01643-31232

WASHER

SN: 15686-@

4шт.

10

176-54-41450

PLATE

SN: 15686-@

1шт.

10

176-54-41160

PLATE,(USED WHEN RADIATOR SHUTTER)

SN: 15686-31573

1шт.

11

01010-81230

BOLT

SN: 15686-@

4шт.

12

01602-01236

WASHER

SN: 15686-@

4шт.

13

01643-31232

WASHER

SN: 15686-@

4шт.

14

175-862-2340

PLATE

SN: 15686-@

4шт.

15

175-862-2350

SEAT

SN: 15686-@

4шт.

16

01010-81020

BOLT

SN: 15686-@

8шт.

17

01602-01030

WASHER

SN: 15686-@

8шт.

18

176-54-41460

PLATE

SN: 15686-@

1шт.

19

01010-81230

BOLT

SN: 15686-@

2шт.

20

01643-31232

WASHER

SN: 21739-@

2шт.

20

0

WASHER

SN: 15686-21738

2шт.

21

196-54-11291

BRACKET

SN: 15686-@

1шт.

22

01010-81030

BOLT

SN: 15686-@

2шт.

23

01602-01030

WASHER

SN: 15686-31573

2шт.

24

176-54-41221

HOOD

SN: 15686-31573

1шт.

24

176-54-61140

HOOD,(FOR ROCKET HEATER)

SN: 15686-31573

1шт.

24

176-54-41350

HOOD,(SAND AND DUSTY SPEC.)

SN: 31560-31573

1шт.

25

175-54-21361

CATCH ASS'Y

SN: 21739-@

2шт.

25

0

CATCH ASS'Y

SN: 15686-21738

2шт.

26

196-54-11311

BRACKET

SN: 15686-@

1шт.

27

01010-81025

BOLT

SN: 15686-@

6шт.

28

01602-01030

WASHER

SN: 15686-@

6шт.

29

01010-81030

BOLT

SN: 15686-@

2шт.

30

01602-01030

WASHER

SN: 15686-@

2шт.

31

175-54-21520

BOLT

SN: 15686-@

14шт.

32

01602-02472

WASHER

SN: 15686-21738

14шт.

33

01643-32460

WASHER

SN: 15686-@

14шт.

34

01010-81230

BOLT

SN: 15686-@

5шт.

35

01602-01236

WASHER

SN: 15686-21738

5шт.

36

01643-31232

WASHER

SN: 15686-@

5шт.

37

176-54-41141

BRACKET

SN: 15686-31573

1шт.

38

01010-81660

BOLT

SN: 21739-31573

4шт.

38

0

BOLT

SN: 15686-21738

4шт.

39

01602-01648

WASHER

SN: 15686-21738

4шт.

40

01643-31645

WASHER

SN: 15686-@

4шт.

41

175-54-21330

SEAT

SN: 15686-@

1шт.

42

01010-81230

BOLT

SN: 21739-@

2шт.

42

0

BOLT

SN: 15686-21738

2шт.

43

01602-01236

WASHER

SN: 15686-21738

2шт.

44

01643-31232

WASHER

SN: 15686-@

2шт.

45

01010-81230

BOLT

SN: 21739-@

2шт.

45

0

BOLT

SN: 15686-21738

2шт.

46

01602-01236

WASHER

SN: 15686-@

2шт.

47

01643-31232

WASHER

SN: 15686-@

2шт.

48

176-54-41153

COVER

SN: 15686-31573

1шт.

49

176-54-41210

PLATE

SN: 15686-31573

1шт.

50

01010-81230

BOLT

SN: 15686-@

4шт.

51

01602-01236

WASHER

SN: 15686-21738

4шт.

52

01643-31232

WASHER

SN: 15686-@

4шт.

Выбрано товаров: 61