Запчасти Komatsu D155C-1P КАПОТ (ДЛЯ ДВИГАТЕЛЬ)(№78-) ЧАСТИ КОРПУСА

Схема запчастей Komatsu D155C-1P - КАПОТ (ДЛЯ ДВИГАТЕЛЬ)(№78-) ЧАСТИ КОРПУСА
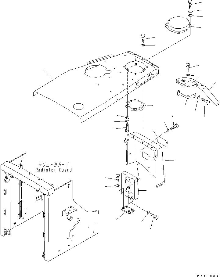
1
2
3
4
5
6
7
8
9
10
11
12
13
14
15
16
17
18
19
20
21
22
23
24
25
26
26
FIT
1:1
100%

Артикул

Название

Примечание

Количество

1

176-54-41360

HOOD

SN: 31578-UP

1шт.

2

175-54-21681

COVER

SN: 15686-UP

1шт.

3

01010-80820

BOLT

SN: 15686-UP

4шт.

4

01602-00825

WASHER

SN: 15686-UP

4шт.

5

01643-00823

WASHER

SN: 15686-UP

4шт.

6

01010-81230

BOLT

SN: 15686-UP

5шт.

7

124-54-26540

WASHER

SN: 15686-UP

5шт.

8

176-54-41141

BRACKET

SN: 15686-UP

1шт.

9

01010-81660

BOLT

SN: 21739-UP

4шт.

9

01010-31665

BOLT

SN: 15686-21738

4шт.

10

01643-31645

WASHER

SN: 15686-UP

4шт.

11

175-54-21330

SEAT

SN: 15686-UP

1шт.

12

01010-81230

BOLT

SN: 31739-UP

2шт.

12

0

BOLT

SN: 15686-21738

2шт.

13

01643-31232

WASHER

SN: 15686-UP

2шт.

14

176-54-41153

COVER

SN: 15686-UP

1шт.

15

176-54-41210

PLATE

SN: 15686-UP

1шт.

16

01010-81230

BOLT

SN: 15686-UP

4шт.

17

01643-31232

WASHER

SN: 15686-UP

4шт.

18

175-862-3530

COVER

SN: 15686-UP

1шт.

19

01010-81020

BOLT

SN: 15686-UP

4шт.

20

01602-21030

WASHER

SN: 15686-UP

4шт.

21

01643-31032

WASHER

SN: 15686-UP

4шт.

22

176-54-46132

COVER

SN: 15686-UP

1шт.

23

176-54-46120

BRACKET

SN: 15686-UP

1шт.

24

01010-81230

BOLT

SN: 15686-UP

4шт.

25

01010-81220

BOLT

SN: 21739-UP

4шт.

25

0

BOLT

SN: 15686-21738

4шт.

26

01643-31232

WASHER

SN: 15686-UP

4шт.

Выбрано товаров: 29