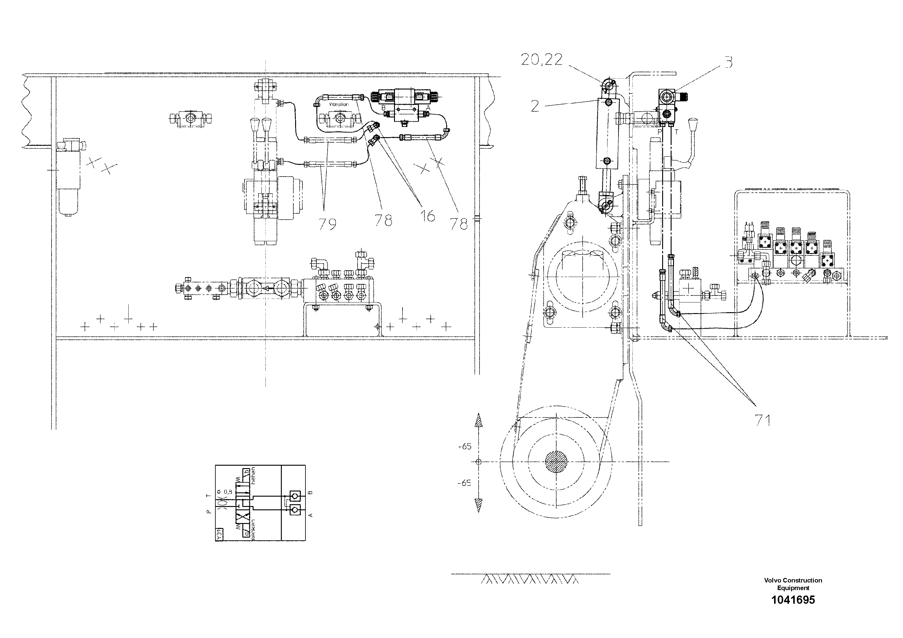
Запчасти Volvo ABG325 S/N 20941 - 60796 Hydr. Auger Height Adjust

Схема запчастей Volvo ABG325 S/N 20941 - - 60796 Hydr. Auger Height Adjust
FIT
1:1
100%

Артикул

Название

Примечание

Количество

1

RM 14298871

Electronic unit

1шт.

10

RM 14273254

Гидроцилиндр

1шт.

10

RM 14273254

Гидроцилиндр

1шт.

15

RM 14131999

Фиттинг

1шт.

15

RM 14131999

Фиттинг

1шт.

16

RM 58833138

Фиттинг

1шт.

16

RM 58833138

Фиттинг

1шт.

2

RM 14328454

Гидроцилиндр

1шт.

2

RM 14328454

Гидроцилиндр

1шт.

20

RM 13951496

Болт

1шт.

20

RM 13951496

Болт

1шт.

22

RM 14085054

Split pin

1шт.

22

RM 14085054

Split pin

1шт.

3

RM 14328462

Клапан

1шт.

30

RM 96725262

Винт шестигранник (торцевой ключ)

1шт.

35

RM 96713250

Винт шестигранник

1шт.

35

RM 96713250

Винт шестигранник

1шт.

40

RM 96712799

Hexagon nut

1шт.

40

RM 96712799

Hexagon nut

1шт.

45

RM 58854316

Стопорная шайба (кольцо)

1шт.

45

RM 58854316

Стопорная шайба (кольцо)

1шт.

5

RM 14157200

Клапан регулирующий (распределительный)

NG6/24V

1шт.

5

RM 14157200

Клапан регулирующий (распределительный)

NG6/24V

1шт.

6

RM 14051320

Blocking valve

1шт.

6

RM 14051320

Blocking valve

1шт.

7

RM 14272637

Крышка

1шт.

7

RM 14272637

Крышка

1шт.

71

RM 13953302

Шланг

1шт.

78

RM 56240666

Шланг

1шт.

79

RM 56240914

Шланг

1шт.

Выбрано товаров: 30