Запчасти Volvo ABG6820 69376 Electrical heating acces for extension VB-T 78 ETC ATT. SCREEDS 2,5 - 8,0M ABG6820

Схема запчастей Volvo ABG6820 - 69376 Electrical heating acces for extension VB-T 78 ETC ATT. SCREEDS 2,5 - 8,0M ABG6820
FIT
1:1
100%

Артикул

Название

Примечание

Количество

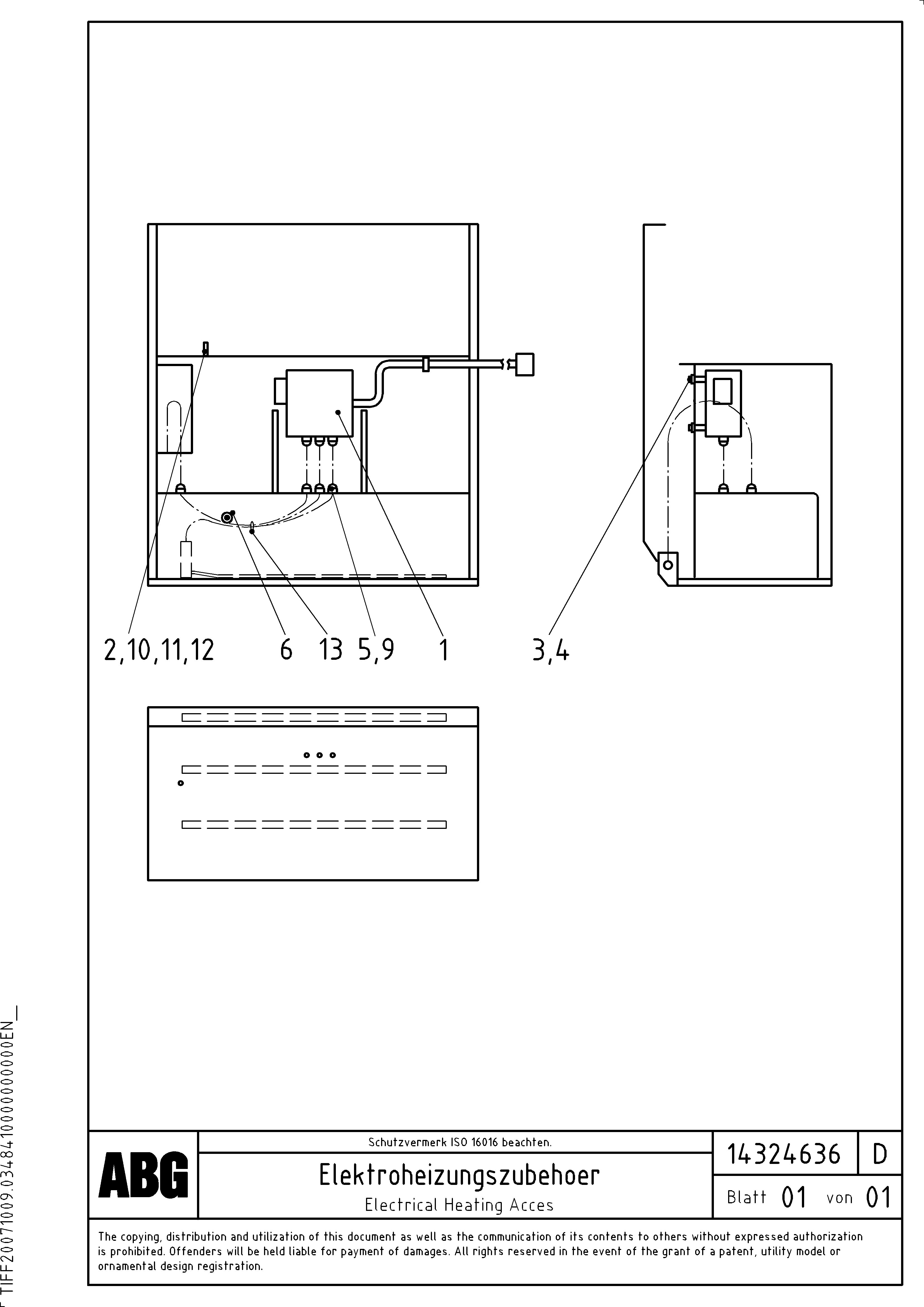
1

RM 54519673

Distribution Box

1шт.

1

RM 54519657

Distribution Box

1шт.

10

RM 96714183

Винт шестигранник

1шт.

10

RM 96714183

Винт шестигранник

1шт.

11

RM 96712872

Плоская шайба

1шт.

11

RM 96712872

Плоская шайба

1шт.

12

RM 14141089

Hexagon nut

1шт.

12

RM 14141089

Hexagon nut

1шт.

13

RM 80680366

Tape

S/N 15885 -

1шт.

2

RM 54573852

Зажим

1шт.

3

RM 58833898

Hexagon nut

1шт.

3

RM 58833898

Hexagon nut

1шт.

4

RM 58854316

Стопорная шайба (кольцо)

1шт.

4

RM 58854316

Стопорная шайба (кольцо)

1шт.

5

RM 54443197

Соединитель

1шт.

5

RM 54443197

Соединитель

1шт.

6

RM 13930110

Hose clamp

S/N 51 - 11526

1шт.

6

RM 13938147

Зажим

S/N 11527 - 15011

1шт.

6

RM 13938147

Зажим

S/N 11527 - 15011

1шт.

6

RM 80637945

Трубка

S/N 15012 -

1шт.

7

RM 58832916

Стопорная шайба (кольцо)

S/N 51 - 15011

1шт.

7

RM 58832916

Стопорная шайба (кольцо)

S/N 51 - 15011

1шт.

8

RM 96714258

Винт шестигранник

S/N 51 - 15011

1шт.

8

RM 96714258

Винт шестигранник

S/N 51 - 15011

1шт.

9

RM 54565767

Lock nut

1шт.

9

RM 54565767

Lock nut

1шт.

9

RM 14141097

Hexagon nut

S/N 51 - 15011

1шт.

9

RM 14141097

Hexagon nut

S/N 51 - 15011

1шт.

Выбрано товаров: 28