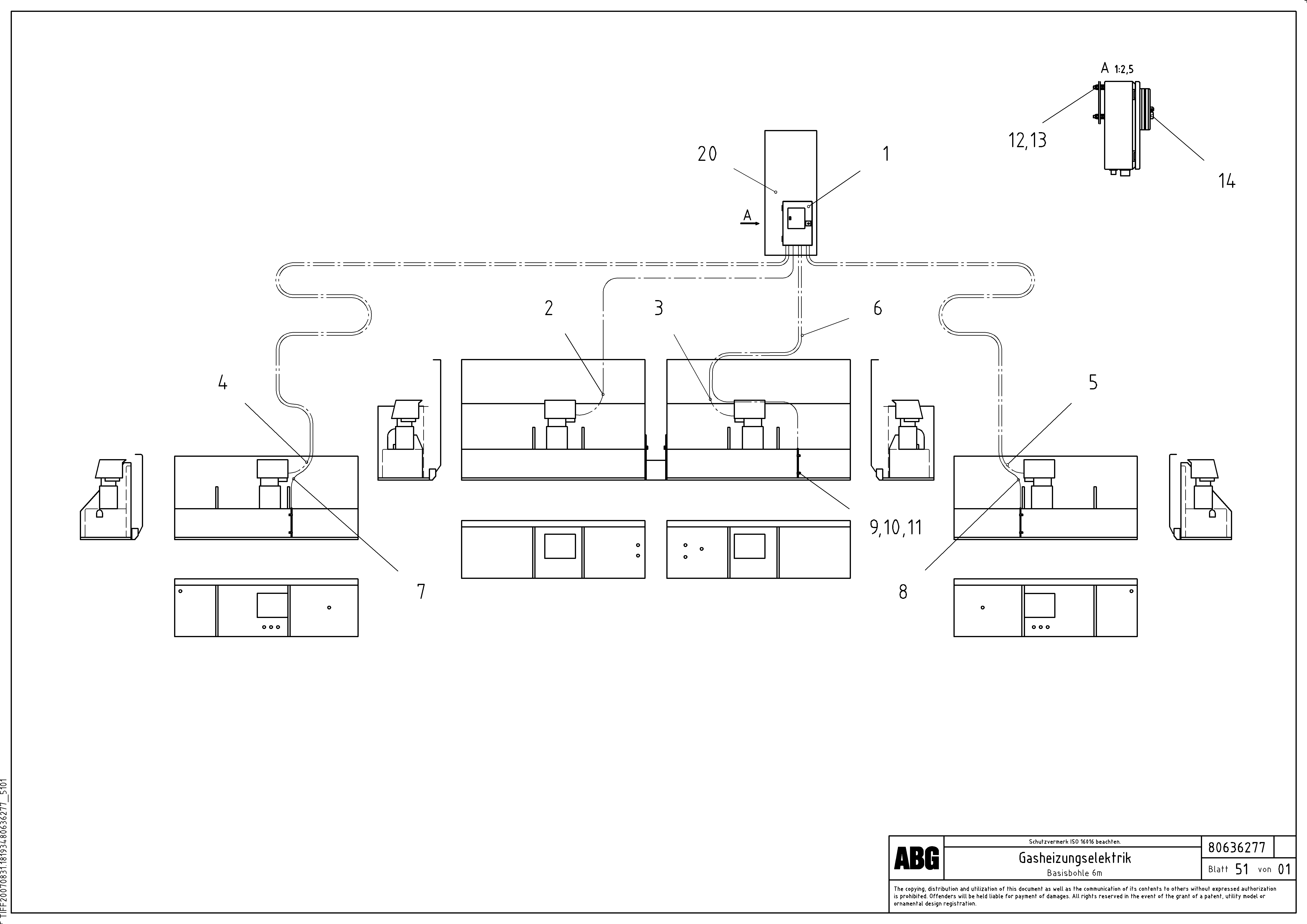
Запчасти Volvo ABG7820B 75700 Gas heating electric for basic screed VB 88 GTC ATT. SCREEDS 3,0 -10,0M ABG6820, ABG7820/ABG7820B

Схема запчастей Volvo ABG7820B - 75700 Gas heating electric for basic screed VB 88 GTC ATT. SCREEDS 3,0 -10,0M ABG6820, ABG7820/ABG7820B
FIT
1:1
100%

Артикул

Название

Примечание

Количество

1

RM 80636129

Control

1шт.

10

RM 58832916

Стопорная шайба (кольцо)

1шт.

10

RM 58832916

Стопорная шайба (кольцо)

1шт.

11

RM 96713623

Винт шестигранник (торцевой ключ)

1шт.

11

RM 96713623

Винт шестигранник (торцевой ключ)

1шт.

12

RM 14083455

Hexagon nut

1шт.

12

RM 14083455

Hexagon nut

1шт.

13

RM 96712898

Плоская шайба

1шт.

13

RM 96712898

Плоская шайба

1шт.

14

RM 13907738

Padlock

1шт.

2

RM 87966479

Cable

1шт.

20

RM 87944617

Fuel Can Holder

1шт.

3

RM 87966461

Cable

1шт.

4

RM 87967782

Cable

1шт.

5

RM 87967774

Cable

1шт.

6

RM 87967790

Cable

1шт.

7

RM 87967808

Cable

1шт.

8

RM 87967873

Cable

1шт.

9

RM 13913801

Зажим

1шт.

9

RM 13913801

Зажим

1шт.

Выбрано товаров: 20