Запчасти Volvo ABG7820B 73732 Gasheating Electric VDT-V 88 GTC ATT. SCREEDS 3,0 - 9,0M ABG7820/ABG780B

Схема запчастей Volvo ABG7820B - 73732 Gasheating Electric VDT-V 88 GTC ATT. SCREEDS 3,0 - 9,0M ABG7820/ABG780B
FIT
1:1
100%

Артикул

Название

Примечание

Количество

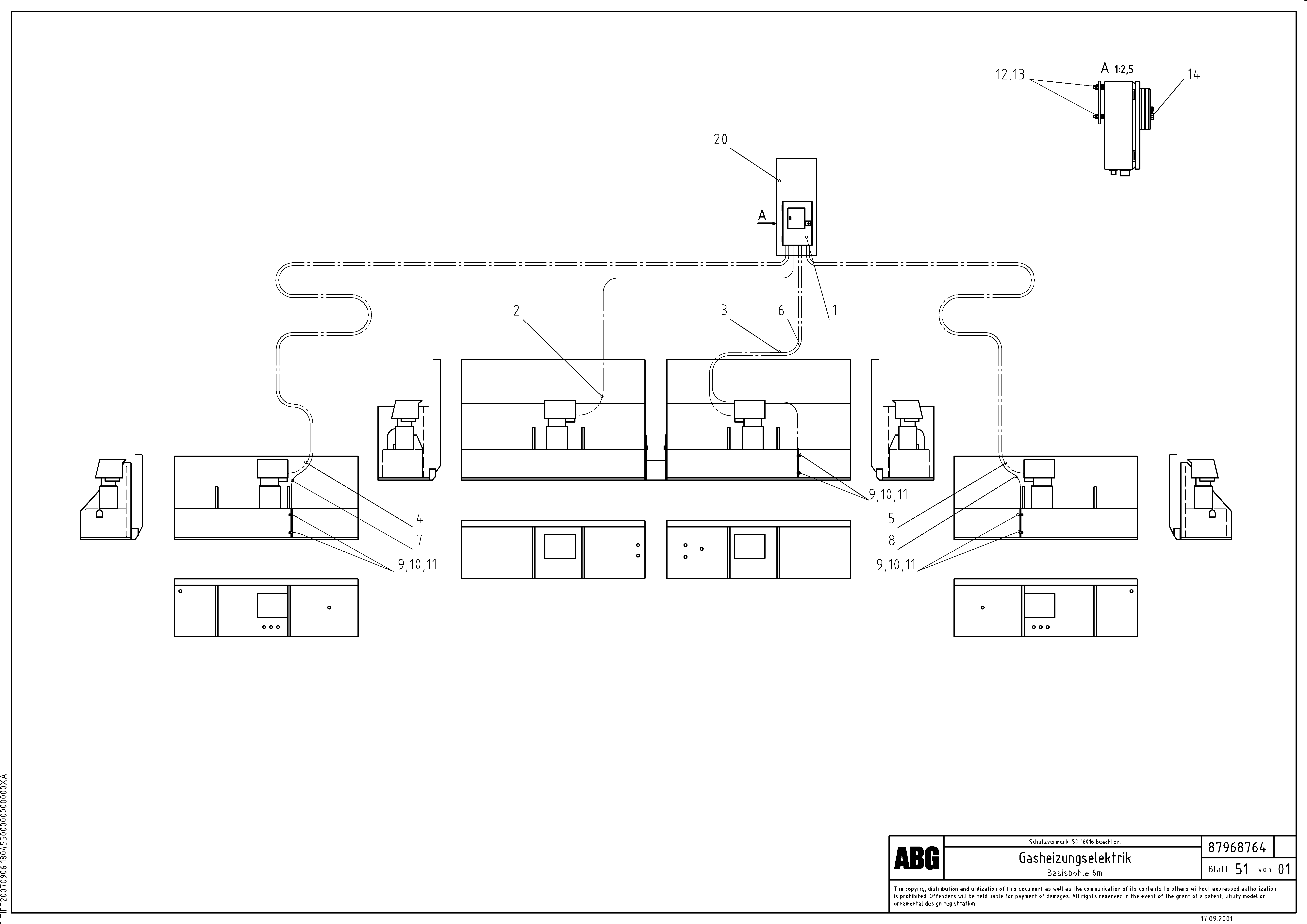
1

RM 80636129

Control

1шт.

1

RM 54760327

Control

1шт.

10

RM 58832916

Стопорная шайба (кольцо)

1шт.

10

RM 58832916

Стопорная шайба (кольцо)

1шт.

11

RM 96713623

Винт шестигранник (торцевой ключ)

1шт.

11

RM 96713623

Винт шестигранник (торцевой ключ)

1шт.

12

RM 14083455

Hexagon nut

1шт.

12

RM 14083455

Hexagon nut

1шт.

13

RM 96712898

Плоская шайба

1шт.

13

RM 96712898

Плоская шайба

1шт.

14

RM 13907738

Padlock

1шт.

2

RM 87966479

Cable

3500

1шт.

20

RM 87944617

Fuel Can Holder

1шт.

3

RM 87966461

Cable

2750

1шт.

4

RM 87967782

Cable

6500

1шт.

5

RM 87967774

Cable

4500

1шт.

6

RM 87967790

Cable

PT 100-B-3000

1шт.

7

RM 87967808

Cable

PT 100-B-6500

1шт.

8

RM 87967873

Cable

PT 100-B-4750

1шт.

9

RM 13913801

Зажим

1шт.

9

RM 13913801

Зажим

1шт.

Выбрано товаров: 21